3-к, Вадима Бованенко, 12 Показать на карте
Калининский район, Тюменская слобода
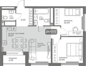
При покупке этой квартиры за наличный расчет предоставляется скидка 5%Прямая продажа от застройщика! Продается трёхкомнатная квартира в строящемся ЖК ''Меридиан Слобода'', срок сдачи: I-кв. 2027, общей площадью 74.74 м², на 9 этаже из 21. Площадь кухни — 20.32 м². ''Меридиан Слобода'' расположен в южной части (зеленой зоне) Тюменской Слободы рядом со строящимся Комарово парком в границах улиц Заполярная и Спасская. В районе расположены все необходимые объекты социальной инфраструктуры.ЖК ''Меридиан Слобода'' состоит из двух домов переменной этажности от 15 до 20 с отделкой фасадов разной фактуры.Главная особенность ЖК — свой собственный хвойный сквер прямо во дворе. Территория сквера будет оформлена в минималистичном стиле, главное правило которого сохранение экосистемы и гармоничное встраивание объектов инфраструктуры в природную среду. Здесь будут дорожки из деревянных настилов, зоны отдыха, отель для птиц.Квартиры сдаются с предчистовой отделкой или с ремонтом. О возможности приобретения квартиры с ремонтом уточняйте у менеджеров отдела продаж.Преимущества ЖК:— тёплый тамбур с домофоном на второй двери— дизайнерское оформление подъездов— колясочная и парковка для велосипедов— лапомойка— кладовые на цокольном этаже со входом через подъезд— закрытый двор— зоны для игр и спорта во дворе
74 м2
9 / 21 этаж
Бетонные блоки
- Показать контакты
- Добавить в избранное
74 м2
9 / 21 этаж
Бетонные блоки
8 881 600
118 833 /м2
Новостройка,
IV-2027
IV-2027
