3-к, Королева, 2098 Показать на карте
Ленинский район, Тарманы
Тюмень, Городской квартал «ИГРИМ»
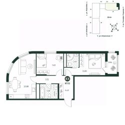
Евротрехкомнатная квартира с просторной угловой кухней-гостиной, обеспечивающей превосходное естественное освещение благодаря окнам на две стороны. Одна из комнат - мастер-спальня, оборудованная собственным санузлом. Площадь прихожей позволяет разместить шкаф для вещей.
67 м2
15 / 18 этаж
Кирпич - монолит
- Показать контакты
- Добавить в избранное
67 м2
15 / 18 этаж
Кирпич - монолит
9 553 100
142 329 /м2
Новостройка,
II-2028
II-2028
