2-к, Сергея Джанбровского, 19 корп. 1 Показать на карте
Тюменская слобода
Дударева, Жилой комплекс «АСТРО»
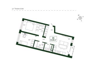
Квартира находится в Квартале мечтателей ''Астро''. Жилой комплекс от ''Паритет Девелопмент'' строится в Тюменской слободе на улице Сергея Джанбровского 19 к1.Характеристики квартиры: этаж - 2количество комнат - 3номер помещения - 4площадь квартиры - 58,1 кв.мвысота потолка - 2,72 мЭто экологически чистая зона с видом на лес с разнообразием хвойных и лиственных деревьев. Вся инфраструктура в шаговой доступности - магазины, кафе, пункты выдачи. В планах - школа и детский сад.Закрытый двор без машин позволит жителям чувствовать себя в безопасности в кругу своих. В нем предусмотрены детские и спортивные площадки, зоны отдыха.Жилой комплекс ''Астро'' включает 6 секций высотой 9-15 этажей с подземным паркингом. В общей сложности в нем всего 384 квартиры. На 1 этажах появится коммерческая инфраструктура. Срок сдачи 1 кв. 2026 года.Планировки учитывают различные сценарии жизни, продуманы и функциональны. В квартирах выполнена стяжка пола с шумоизоляцией, выровнены стены, разводка отопления - горизонтальная - в полу, установлены счетчики с телеметрией.Эту планировку можно приобрести с готовой отделкой в темном или светлом цветовом решении, а также с кухонным гарнитуром, мебелью и декором.Большие окна наполняют квартиру естественным светом.Выделены зоны для работы и отдыха. Просторный санузел позволяет свободно разместить и ванну, и стиральную машину.Большая кухня имеет функциональную планировку, где комфортно собираться всей семьей или с друзьями. Здесь легко расположится кухонный гарнитур, стол со стульями и место для отдыха.
58 м2
2 / 15 этаж
Кирпич - монолит
- Показать контакты
- Добавить в избранное
58 м2
2 / 15 этаж
Кирпич - монолит
9 750 000
167 814 /м2
Новостройка,
I-2026
I-2026
