3-к, Василия Подшибякина, 5 Показать на карте
Калининский район, Тюменская слобода
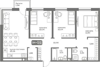
3-комн. квартира от застройщика в ЖК ''Мидгард на Уездной'' на 14 этаже. Квартира без отделки, после выдачи ключей можно делать ремонт. Общая площадь: 75.77 кв.м., жилая: 33.63 кв.м., площадь просторной кухни-столовой: 21.09 кв.м. Комнаты изолированные, все окна выходят на одну сторону. В квартире одна лоджия, один совмещенный и один раздельный санузел. Высота потолков 2.72 м. Дом монолитный, черырехподъездный, переменной этажности, от 9 до 15 этажей. Квартира находится в 4-й секции высотой 15 этажей в корпусе ГП-1. На этаже 9 квартир. В подъезде 1 пассажирский и 1 грузовой лифт. Окончание строительства - 3 квартал 2027 года. Оформление сделки по договору долевого участия. ''Мидгард на Уездной'' - современный проект комфорт-класса, расположенный на первой линии Тюменской слободы, с видом на развязку Московского тракта. Он сочетает в себе современные архитектурные решения и комфортное проживание в гармонии с природой. Жилой комплекс находится в перспективном районе, который отличается транспортной доступностью: до крупных торговых центров ''Кристалл'' и ''Колумб'' можно добраться за 10 минут, а до центра города - за 15 минут. В шаговой доступности школы, детские сады, торговые центры и парки, что делает локацию идеальной для комфортной жизни. Проектом предусмотрены дома с дизайнерскими входными зонами и планировочными решения для любого сценария жизни с возможностью включить в ипотечный платеж ремонт, мебель и технику от застройщика. Закрытый двор и собственная аллея вдоль жилого комплекса позволят насладиться тишиной вдали от суеты большого города. #2MsdsT
75 м2
14 / 15 этаж
Монолит
- Показать контакты
- Добавить в избранное
75 м2
14 / 15 этаж
Монолит
8 470 000
111 786 /м2
Новостройка,
III-2027
III-2027
