3-к, Вице-адмирала Воронцова, 1 Показать на карте
Ленинский район, Мыс
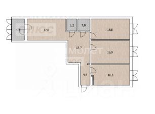
Трехкомнатная квартира в в ЖК ''Первая Линия. Гавань площадью 70,9 кв.м.Предчистовая отделка, стены ровные, на полу стяжка. Во дворе современные детские площадки, спортивная зона, зона отдыха. В доме есть велосипедная парковка и колясочная.В шаговой доступности: остановка, сетевые магазины, аптека, спортивные школы (плавания, тхэквондо), дом культуры, СОШ 48, ДС 65, горячий источник ''Волна'', ''Сити Молл'', в 15 мин. до центра города.Способы покупки:- обмен вашей квартиры на эту- наличный расчет- ипотекаЗаписаться на просмотр можно по телефону.Квартира оформлена на юр.лицо Брусника Обмен и была выкуплена нами в обмен на новую в проекте Брусники. Квартира прошла полную юридическую проверку, не имеет задолженностей и долей несовершеннолетних детей. Все документы полностью готовы к сделке.Номер квартиры в нашей базе: ТМН010451.
70 м2
2 / 10 этаж
Бетонные блоки - монолит
- Показать контакты
- Добавить в избранное
70 м2
2 / 10 этаж
Бетонные блоки - монолит
7 400 000
104 372 /м2
