Офисное помещение
Республики, 173 Показать на карте
Республики, 173 Показать на карте
Ленинский район, Район КПД
Тюмень
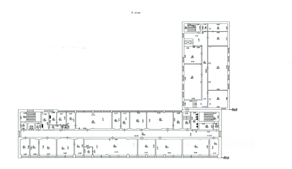
Арт. 85632436. Сдается в аренду офисное здание в центреОбщая площадь здания 7050 м²Здание состоит из 3 корпусов А,Б,В :Корпусы А,БКорпус А Б - 1 этаж- 634 кв.мКорпус А Б - 2 этаж- 840 кв.мКорпус А Б - 3 этаж- 1146 кв.мКорпус А Б - 4 этаж- 1130 кв.мКорпус А Б - 5 этаж- 1170 кв.мКорпус ВКорпус В - 1 этаж- 960 кв.мКорпус В - 2 этаж- 570 кв.мКорпус В - 3 этаж- 594 кв.мСдаётся как все здание целиком, так и поэтажно.Характеристики здания: - Высота потолков 3,2 м - Планировки кабинетного типа- Конференц -зал- Кабинеты для руководства с переговорными- Готовое помещение для столовой- 2 лифта- ПарковкаВ стоимость арендной ставки входит: охрана, клининг, пожарная охрана, вывоз мусора.Готовы оперативно организовать просмотр помещения и ответить на все интересующие Вас вопросы.
400 м2
- Показать контакты
- Добавить в избранное
400 м2
600 000 /мес.
1 500 /м2
