Если цена в объявлении изменится, мы сразу сообщим вам об этом на электронную почту.
Нажимая «Подписаться», вы соглашаетесь с правилами.
продам дом, У Озера кв-л (Тюмень городской округ)10 700 000 ₽
17 фев 2025
Дата публикации объявления
Обн. 20 мая
Дата обновления объявления
102 885 ₽/м²
Чистая продажа
Термин "Чистая продажа" означает, что в квартире никто не прописан или
есть куда выписаться и вывезти вещи. Это лучший вариант для покупателя.
Вероятность срыва сделки минимальна.
Этажей1
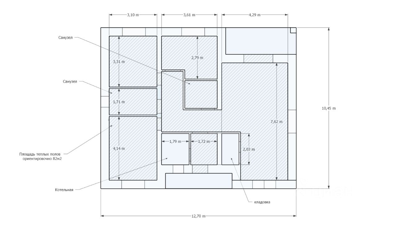
Площадь участка6,6 соток
Общая площадь104 м2
ЭлектричествоЕсть
Газоснабжениецентральное
Продается новый современный уютный одноэтажный дом в коттеджном поселке Береза Парк. Дом площадью 105 м2 с предчистовой отделкой расположен на одном из участков Квартала у озера. Площадь участка 6,6 соток, что позволяет разместить на нём баню, гараж, беседку с барбекю. Планировка дома включает в себя: - кухню гостиную 33м2, - 3 изолированных комнаты, - котельную, - 2 санузла. - открытую веранду с возможностью остекленения. В доме теплые полы по всей площади. Сделаны вывода под газовый котёл. Газовый стояк на участке. На территории коттеджного поселка асфальтированные дороги, тротуары, насаждения, искусственные водоемы и беседки, спортплощадка. Территория ограждена.
Продается новый современный уютный одноэтажный дом в коттеджном поселке Береза Парк. Дом площадью 105 м2 с предчистовой отделкой расположен на одном из участков Квартала у озера. Площадь участка 6,6 соток, что позволяет разместить на нём баню, гараж, беседку с барбекю. Планировка дома включает в себя: - кухню гостиную 33м2, - 3 изолированных комнаты, - котельную, - 2 санузла. - открытую веранду с возможностью остекленения. В доме теплые полы по всей площади. Сделаны вывода под газовый котёл. Газовый стояк на участке. На территории коттеджного поселка асфальтированные дороги, тротуары, насаждения, искусственные водоемы и беседки, спортплощадка. Территория ограждена. В ближайшем доступе находятся остановки транспорта, продуктовые магазины (Магнит, Монетка, Красное и Белое), аптеки, кафе. Также, в пяти минутах езды расположена база отдыха с горячими источниками Верхний Бор. Все фотографии по запросу.