Если цена в объявлении изменится, мы сразу сообщим вам об этом на электронную почту.
Нажимая «Подписаться», вы соглашаетесь с правилами.
продам 1-к, Сергея Джанбровского, 25 корп. 15 900 000 ₽
26 мая 2025
Дата публикации объявления
Обн. вчера
Дата обновления объявления
5
Количество просмотров (+ просмотры за сегодня)
Спецпредложение
Турбо x8
130 907 ₽/м²
Чистая продажа
Термин "Чистая продажа" означает, что в квартире никто не прописан или
есть куда выписаться и вывезти вещи. Это лучший вариант для покупателя.
Вероятность срыва сделки минимальна.
Квартира
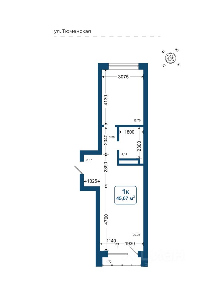
Общая площадь45,07 м2
Кухня20,3 м2
Тип собственностисвидетельство о праве собственности
Застройщик - Специализированный застройщик «РОДИНА-2», ООО. Проектная декларация опубликована на сайте наш.дом.рф
Хито — квартал в японской эстетике в районе Дударева. Проект будет состоять из 3 домов, первая очередь строительства — это 17-этажный дом на 7 секций. Проект находится рядом с лесным массивом, на пересечении улиц Тюменская и Сергея Джанбровского. Дорога на авто до центра займёт 20 минут, до ТРЦ ''Колумб'' и ''Кристалл'' — 10-12 минут. До лесного парка идти 15 минут пешком. Здесь развитая инфраструктура: детские сады и школы, мед. учреждения, фитнес-клубы, супермаркеты. Во дворах будет своя дорожка в парк, павильоны для пинг-понга и с качелями, спортивная и детская площадки, площадка для выгула собак. Также будет обустроен сад камней, мостик через ручей, тропа для выгула собак и спортивная тропа в лесу.
Хито — квартал в японской эстетике в районе Дударева. Проект будет состоять из 3 домов, первая очередь строительства — это 17-этажный дом на 7 секций. Проект находится рядом с лесным массивом, на пересечении улиц Тюменская и Сергея Джанбровского. Дорога на авто до центра займёт 20 минут, до ТРЦ ''Колумб'' и ''Кристалл'' — 10-12 минут. До лесного парка идти 15 минут пешком. Здесь развитая инфраструктура: детские сады и школы, мед. учреждения, фитнес-клубы, супермаркеты. Во дворах будет своя дорожка в парк, павильоны для пинг-понга и с качелями, спортивная и детская площадки, площадка для выгула собак. Также будет обустроен сад камней, мостик через ручей, тропа для выгула собак и спортивная тропа в лесу. В парадных обустроен тёплый тамбур, витражи и перегородки в стиле сёдзи, мягкие зоны ожидания. В проекте более 20 видов планировок: виды на лес, гардеробные с окном, кухни-гостиные > 20 м2, террасы на 1 и 2 этажах, студии с двумя окнами.