Если цена в объявлении изменится, мы сразу сообщим вам об этом на электронную почту.
Нажимая «Подписаться», вы соглашаетесь с правилами.
продам дом, Сократа6 000 000 ₽
22 июля 2025
Дата публикации объявления
Обн. 17 апр
Дата обновления объявления
1
Количество просмотров (+ просмотры за сегодня)
92 166 ₽/м²
Чистая продажа
Термин "Чистая продажа" означает, что в квартире никто не прописан или
есть куда выписаться и вывезти вещи. Это лучший вариант для покупателя.
Вероятность срыва сделки минимальна.
Этажей1
Площадь участка6,57 соток
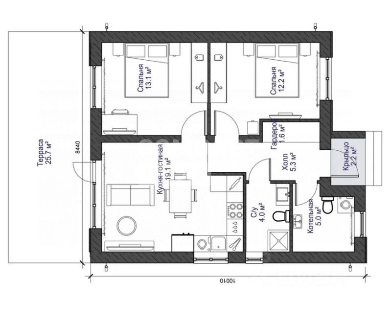
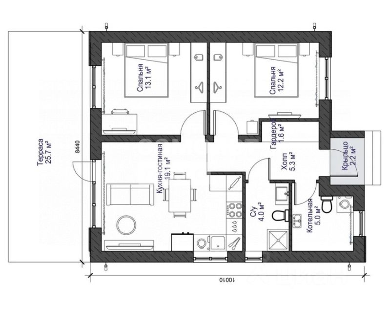
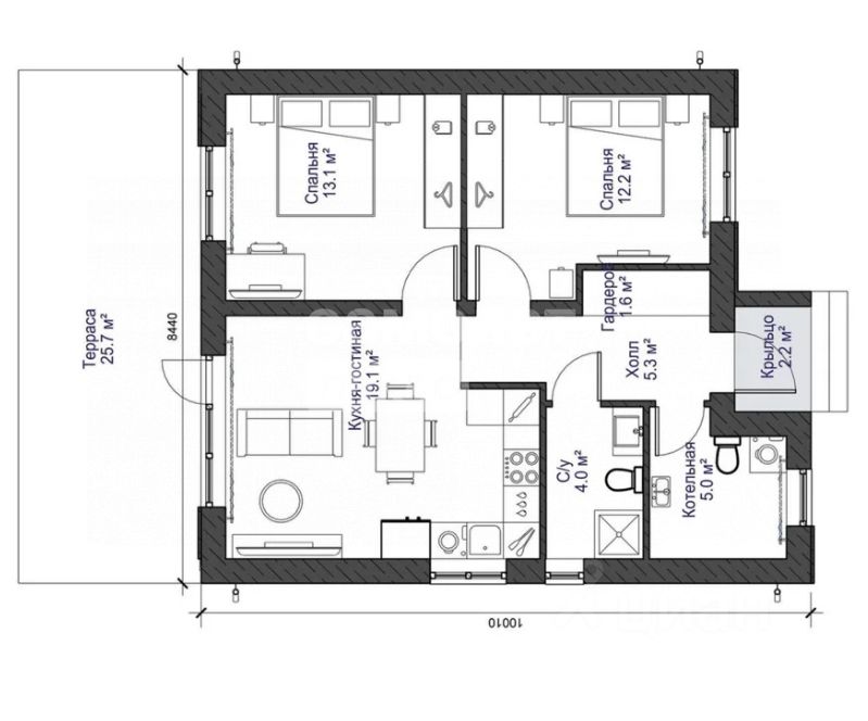
Общая площадь65,1 м2
ЭлектричествоЕсть
Газоснабжениецентральное
Арт. 111430591 Дом за 6 млн рублей без первоначального взноса!
Возможно? Да!!!!
В очень крутой локации по Ирбитскому тракту на участке от 7,5 соток земли.
Но, можно построить и на своём участке за 4-5 млн рублей (в зависимости от внутренней отделки). Либо улучшенная черновая, либо вайт - бокс, либо с ремонтом.
**теплый пол по всему дому + радиаторы **котельная с электрическим котлом и бойлером **приточный клапан установлен в каждой комнате **скважина и септик
Дом 2+ с двумя спальнями, общей площадью 62 м².
Арт. 111430591 Дом за 6 млн рублей без первоначального взноса!
Возможно? Да!!!!
В очень крутой локации по Ирбитскому тракту на участке от 7,5 соток земли.
Но, можно построить и на своём участке за 4-5 млн рублей (в зависимости от внутренней отделки). Либо улучшенная черновая, либо вайт - бокс, либо с ремонтом.
**теплый пол по всему дому + радиаторы **котельная с электрическим котлом и бойлером **приточный клапан установлен в каждой комнате **скважина и септик
Дом 2+ с двумя спальнями, общей площадью 62 м².
Но, побывав внутри такого дома, создаётся ощущение простора, ибо нет лишних коридоров, большие окна дают много света и пространства, а грамотное расположение комнат даёт ощущение личного пространства.
Его нужно видеть и примерять на себя!
Проверено! Знак качества! Аккредитация во всех банках! Не веришь? Поехали посмотрим?
Гарантия юридической чистоты сделки от компании и без комиссии!
Ps: средняя цена квартиры в стройке со сдачей в 2026 году S 60-65 м² от 7,7 млн рублей.