Застройщик - Специализированный застройщик «СКАНДИА У ЛЕСА», ООО. Проектная декларация опубликована на сайте наш.дом.рф
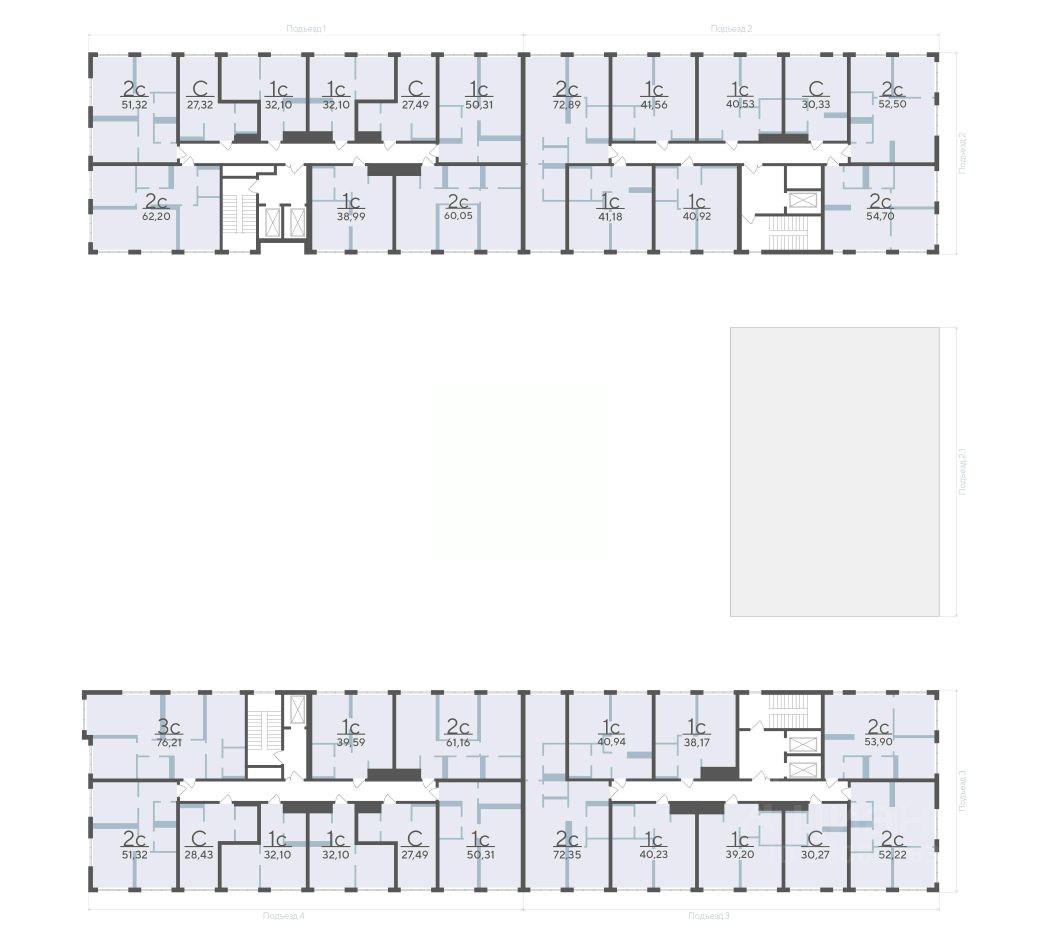
Продаётся студия в строящемся доме (ГП 2 (Сергея Корепанова, 34)), срок сдачи: IV-кв. 2027, общей площадью 28.43 кв.м., на 3 этаже. Новый жилой комплекс ''Скандиа. Квартал у Леса'' от Специализированного застройщика ''СКАНДИА У ЛЕСА'' расположен в г. Тюмень на ул. Бориса Прудаева.