Квартал в Комарово Парк — шесть домов переменной этажности и два наземных паркинга, которые формируют уютную квартальную застройку, органично вписываясь в природное окружение. Здесь можно наслаждаться тишиной, сохраняя доступность городской инфраструктуры. Комарово Парк — это новый район города с собственной инфраструктурой, расположенный в черте города и в то же время рядом с природой.
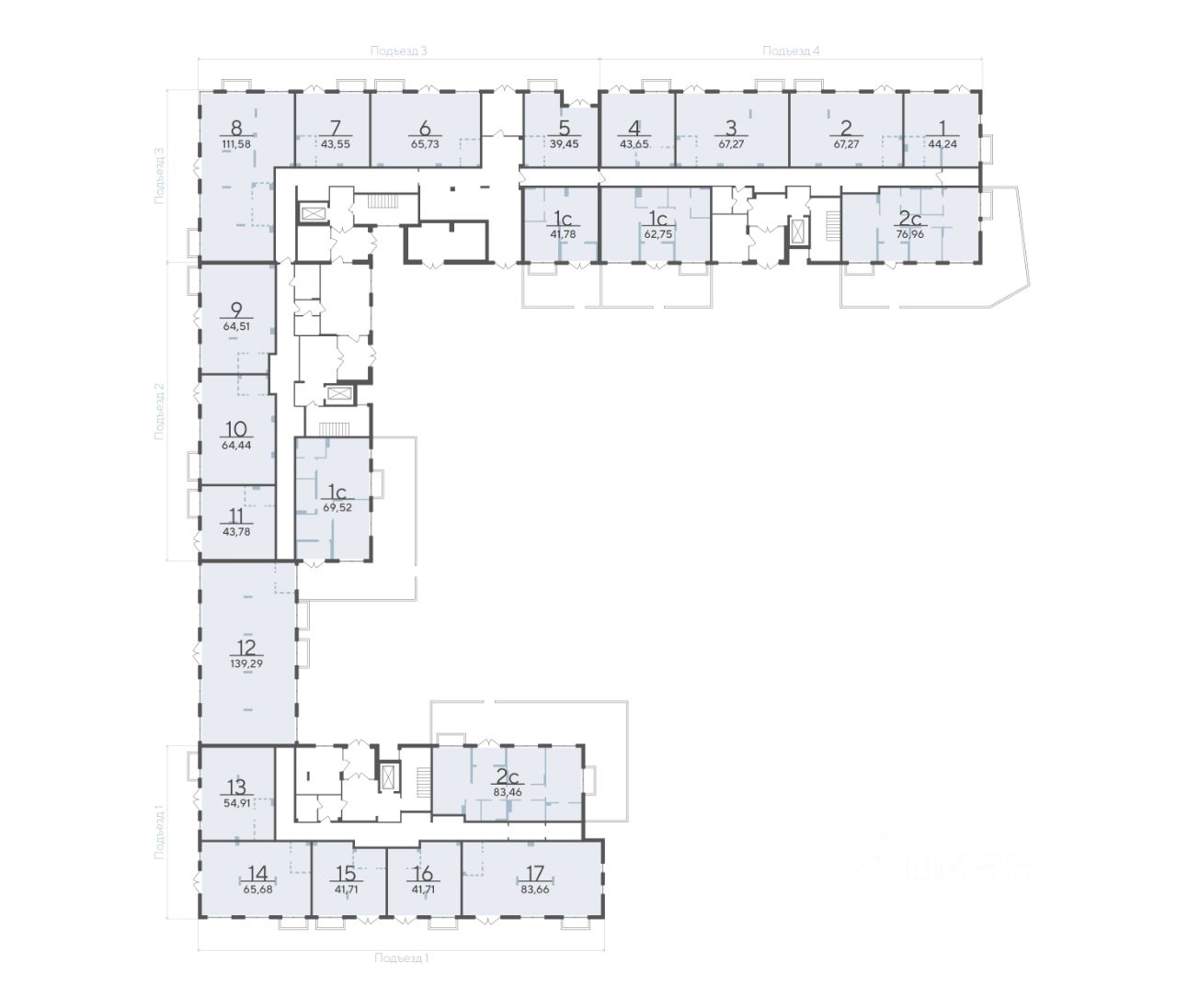
Уютная однокомнатная квартира 62.75 кв.м на 1 этаже. Функциональная планировка позволяет удобно организовать быт, а кухня-гостиная подойдёт для отдыха и общения.



















