Если цена в объявлении изменится, мы сразу сообщим вам об этом на электронную почту.
Нажимая «Подписаться», вы соглашаетесь с правилами.
продам 1-к, Евгения Войнова, 3 корп. 35 574 600 ₽
9 сен
Дата публикации объявления
Обн. 11 мая
Дата обновления объявления
Спецпредложение
Турбо x8
222 984 ₽/м²
Чистая продажа
Термин "Чистая продажа" означает, что в квартире никто не прописан или
есть куда выписаться и вывезти вещи. Это лучший вариант для покупателя.
Вероятность срыва сделки минимальна.
Квартира
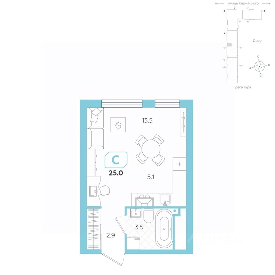
Общая площадь25 м2
Жилая площадь13,5 м2
Кухня5,1 м2
Тип квартирыстудия
Тип собственностисвидетельство о праве собственности
Застройщик - Специализированный застройщик «Крылья», ООО. Проектная декларация опубликована на сайте наш.дом.рф
Уютная студия обладает правильной геометрией, что позволяет максимально эффективно использовать пространство.
Просторная кухня-гостиная становится идеальным местом для совместного времяпрепровождения с друзьями или семейных вечеров. Здесь легко расположить все необходимое: от обеденной зоны до комфортного места для отдыха, создавая атмосферу уюта и гармонии.
Вместительная ванная комната площадью предлагает все удобства для комфортного использования. Коридор с предусмотренным местом под шкаф добавляет функциональности и удобства, позволяя организовать хранение вещей без ущерба для эстетики. Это решение помогает поддерживать порядок и создает уютную атмосферу в студии.
Уютная студия обладает правильной геометрией, что позволяет максимально эффективно использовать пространство.
Просторная кухня-гостиная становится идеальным местом для совместного времяпрепровождения с друзьями или семейных вечеров. Здесь легко расположить все необходимое: от обеденной зоны до комфортного места для отдыха, создавая атмосферу уюта и гармонии.
Вместительная ванная комната площадью предлагает все удобства для комфортного использования. Коридор с предусмотренным местом под шкаф добавляет функциональности и удобства, позволяя организовать хранение вещей без ущерба для эстетики. Это решение помогает поддерживать порядок и создает уютную атмосферу в студии.
Эта квартира идеально подходит для тех, кто ценит стильный, современный дизайн и хочет жить в функциональном пространстве, где каждый элемент продуман до мелочей