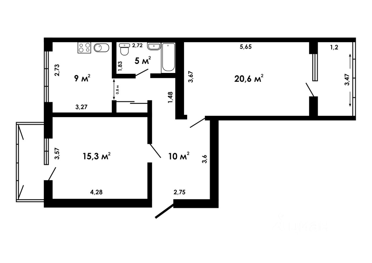
Комфортная просторная планировка с отличной звукоизоляцией, распашонка с балконом и лоджией на обе стороны. Тёплый кирпичный дом серии 1-510. Пятый этаж, лифт отсутствует. На этаже по три квартиры. Новая крыша (в 2024 г. был проведён капитальный ремонт). Высокие потолки (2.9 м), совмещённый санузел с узаконенной перепланировкой. Две изолированные комнаты: кабинет (15,3 кв.м.), зал (20,6 кв.м.). Площадь кухни 9 кв.м.
Удобная и развитая инфраструктура: транспортная развязка для поездок в любую сторону (в шаговой доступности несколько автобусных остановок), через дорогу школы 21, 40, детский сад, детская поликлиника, спортивная школа, корпуса Тюменского индустриального института.
2-x кoмнатнaя квaртиpa в самом центре Тюмени.
Комфортная просторная планировка с отличной звукоизоляцией, распашонка с балконом и лоджией на обе стороны. Тёплый кирпичный дом серии 1-510. Пятый этаж, лифт отсутствует. На этаже по три квартиры. Новая крыша (в 2024 г. был проведён капитальный ремонт). Высокие потолки (2.9 м), совмещённый санузел с узаконенной перепланировкой. Две изолированные комнаты: кабинет (15,3 кв.м.), зал (20,6 кв.м.). Площадь кухни 9 кв.м.
Удобная и развитая инфраструктура: транспортная развязка для поездок в любую сторону (в шаговой доступности несколько автобусных остановок), через дорогу школы 21, 40, детский сад, детская поликлиника, спортивная школа, корпуса Тюменского индустриального института. Тихий уютный густо озеленённый двор со шлагбаумом, большими спортивными площадками (включая хоккейный корт) и местами для парковки. Доброжелательные соседи, чистый, светлый и регулярно убираемый подъезд. Неподалёку находятся ТРЦ Гудвин, ТРЦ Магеллан, Цветной бульвар, Центральная площадь. В паре минут ходьбы музейный комплекс имени И.Я. Словцова, музей Россия моя история, несколько аптек. В пешей доступности круглосуточные сетевые магазины, ПВЗ маркетплейсов (Wildberries в самом доме, OZON в соседнем дворе).
Во всей квартире пластиковые окна, в комнатах новые рулонные шторы блэкаут. Балкон со свежим ремонтом и новыми стеклопакетами (выходит во двор) + лоджия с раздвижными пластиковыми окнами, обшитая деревом (выходит на улицу Советская). Ровный залитый пол по всей площади квартиры: в кабинете свежий линолеум, в зале ламинат. Прихожая, коридор, кухня и санузел выложены плиткой. В одной из комнат (кабинет) полностью свежий ремонт с натяжным потолком, новой медной проводкой и удобными электроточками. Во второй комнате и кухне косметический ремонт. Большая кухня с гарнитуром, техникой (СВЧ, холодильник, накопительный фильтр для воды) и электроплитой. Прихожая под ремонт, установлена новая входная дверь с отличной шумоизоляцией, надёжными замками и тройным контуром утепления. Имеется встроенный шкаф-купе в коридоре, диван в зале. Остальная мебель отсутствует, но есть разборные стальные мебельные конструкции системы джокер. При необходимости, с реальным покупателем можно будет договориться о предоставлении мебели в течение срока переезда. Также, по желанию покупателя, технику можем как оставить, так и забрать.
Один совершеннолетний собственник, ограничения и обременения отсутствуют. Готовы показать в любое время. Можно заезжать и жить!