сдам офисное помещение, Салтыкова-Щедрина, 58330 000 ₽ в месяц
7 ноя
Дата публикации объявления
Обн. вчера
Дата обновления объявления
6
Количество просмотров (+ просмотры за сегодня)
650 ₽/м² в месяц
Параметры
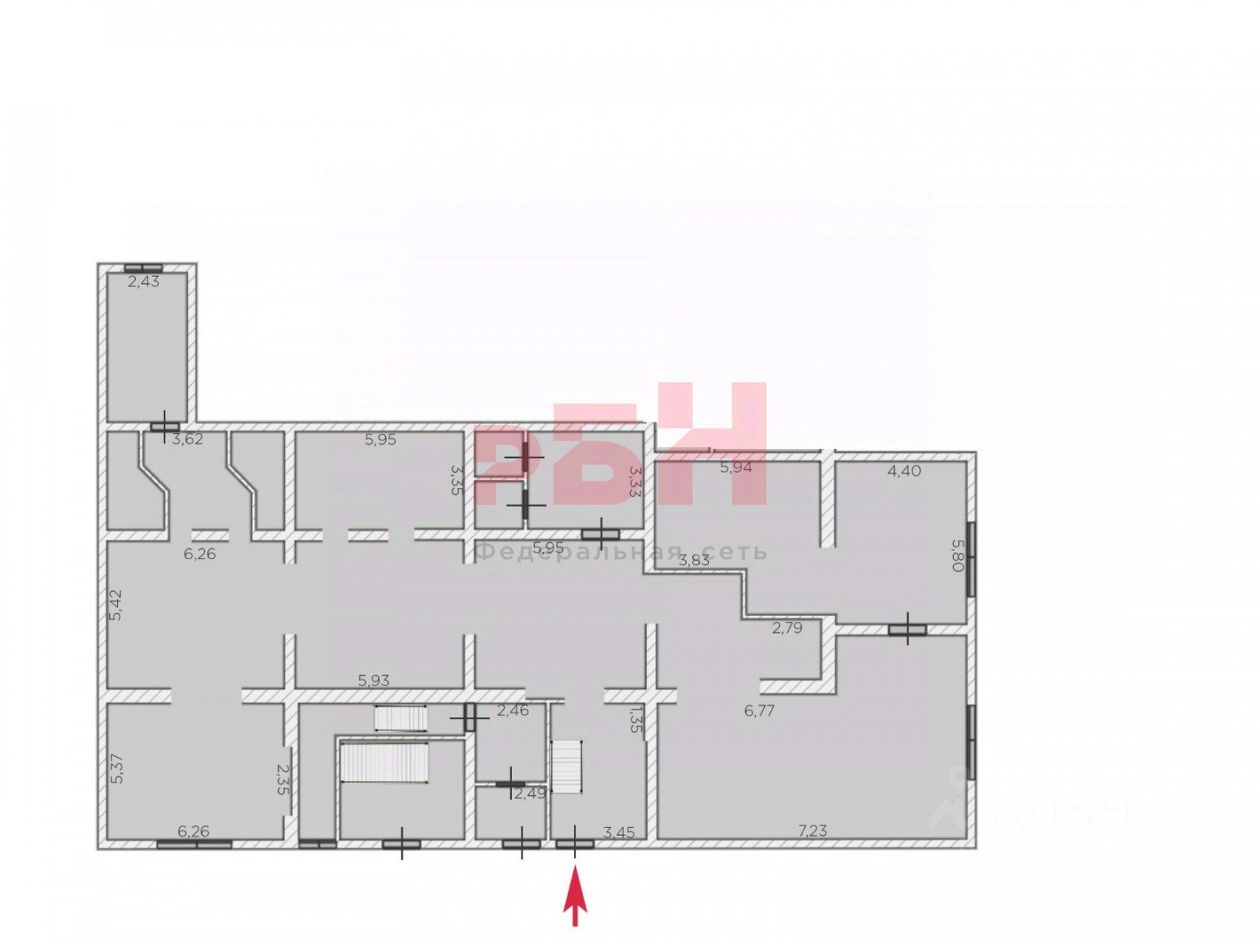
Общая площадь507,5 м2
Этаж1
Отдельный входесть
Назначение помещения
салон красоты, парикмахерская, для работы с клиентами
Предлагается в аренду офис 507, 5 кв. м. в центре г. Тюмени.
БЕЗ КОМИССИИ ДЛЯ АРЕНДАТОРА 1-линия, 1-этаж, доступ 24/7, высокий пешеходный и автомобильный трафик, отдельный вход с витражным фасадом, высота потолков 3м, свободная планировка, качественный косметический ремонт, 100 кВт, мощная принудительная приточно-вытяжная вентиляция, место для рекламы на фасаде, 2 с/у, домофон, видеонаблюдение, вневедомственная охрана. система кондиционирования.
Подойдет под офис крупной компании, IT-сферы, банк, строительный бизнес, компьютерный клуб, спорт-зал, салон красоты и другие.
Коммунальные услуги оплачиваются арендатором.
Предлагается в аренду офис 507, 5 кв. м. в центре г. Тюмени.
БЕЗ КОМИССИИ ДЛЯ АРЕНДАТОРА 1-линия, 1-этаж, доступ 24/7, высокий пешеходный и автомобильный трафик, отдельный вход с витражным фасадом, высота потолков 3м, свободная планировка, качественный косметический ремонт, 100 кВт, мощная принудительная приточно-вытяжная вентиляция, место для рекламы на фасаде, 2 с/у, домофон, видеонаблюдение, вневедомственная охрана. система кондиционирования.
Подойдет под офис крупной компании, IT-сферы, банк, строительный бизнес, компьютерный клуб, спорт-зал, салон красоты и другие.
Коммунальные услуги оплачиваются арендатором.
Подробную информацию уточняйте у наших специалистов _________________________________________________ _________________ ''Регион Бизнес Недвижимость'' Коммерческая недвижимость Без комиссии для арендаторов