Арт. 27290376. Нежилое помещение под организацию общественного питания, в центре города, напротив остановочного комплекса.
Расположено в цокольном этаже офисного центра. Высота потолков 3 метра. Электрическая мощность 35 кВт.
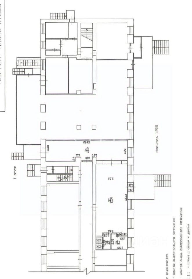
В помещнии 2 входа. Центральная входная группа с ул.Республики и со двора. Основная площадь - свободная планировка. На планировке выделенно синим цветом.
Предоставляется место для рекламной вывески. Высокий пешеходный и автомобильный трафик (напротив объекта, через дорогу есть парковочный карман),
Зона наличия нескольких бизнесс центров обеспечат бизнесу постоянных клиентов.
Комунальные платежи оплачиваются дополнительно.
Согласуем комфортное время просмотра.

