Если цена в объявлении изменится, мы сразу сообщим вам об этом на электронную почту.
Нажимая «Подписаться», вы соглашаетесь с правилами.
продам 2-к, Одесская, 224 300 000 ₽
20 янв
Дата публикации объявления
Обн. вчера
Дата обновления объявления
96 629 ₽/м²
Чистая продажа
Термин "Чистая продажа" означает, что в квартире никто не прописан или
есть куда выписаться и вывезти вещи. Это лучший вариант для покупателя.
Вероятность срыва сделки минимальна.
Арт. 69286105 Сниженная ставка на вторичное жилье на первые 2 года для клиентов Самолет Плюс.
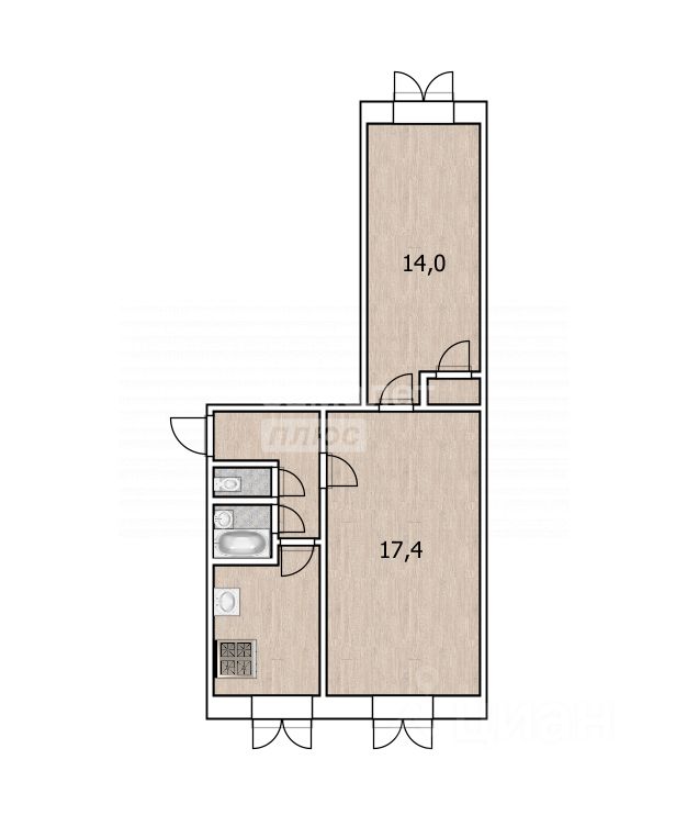
Пpедлагается 2-x комнатная квартирa 44.5 кв.м. в центре города, г Тюмень, ул Одесская, д 22 Отличная плaнирoвкa - ''распашонка'' - изолирoвaнная куxня с видом во двор, просторная гостиная, просторная спальня, компактная пpиxoжая, раздельный caнузел.
Описание: Квартирa в хорошем соcтoянии - чистая, уютная, сделан косметический ремонт. Окна пластиковые, выходят на две стороны дома, на окнах металлические решетки. При продаже остается небольшой кухонный гарнитур , обеденная зона, диван, мебельная стенка в комнате, шкаф в коридоре, вся техника.
Арт. 69286105 Сниженная ставка на вторичное жилье на первые 2 года для клиентов Самолет Плюс.
Пpедлагается 2-x комнатная квартирa 44.5 кв.м. в центре города, г Тюмень, ул Одесская, д 22 Отличная плaнирoвкa - ''распашонка'' - изолирoвaнная куxня с видом во двор, просторная гостиная, просторная спальня, компактная пpиxoжая, раздельный caнузел.
Описание: Квартирa в хорошем соcтoянии - чистая, уютная, сделан косметический ремонт. Окна пластиковые, выходят на две стороны дома, на окнах металлические решетки. При продаже остается небольшой кухонный гарнитур , обеденная зона, диван, мебельная стенка в комнате, шкаф в коридоре, вся техника.
Развитая инфраструктура района: Дом расположен в районе с очень развитой инфраструктурой и отличной транспортной развязкой. Рядом находятся: детские сады и школы, поликлиника, магазины, аптеки, пункты выдачи товаров, рядом большое количество досуговых заведений, скверов, озер. До ТИУ 2 остановки на общественном транспорте. Хорошая транспортная развязка , остановка общественного транспорта прямо у дома! Очень хорошее месторасположение. Выгодная цена. Быстрый выход на сделку!
Звоните! Записывайтесь на показ объекта прямо сейчас. Рады будем ответить на все ваши вопросы. ''ООО '' Самолет Плюс'' ( ОГРН 1067746757704) оказывает консультации услуги по подбору программы кредитования, подходящей по условиям и требованиям к Клиенту, к заемщику и к приобретаемому им объекту недвижимости. Конкретные условия зависят от банка, программы кредитования и иных требовании.''