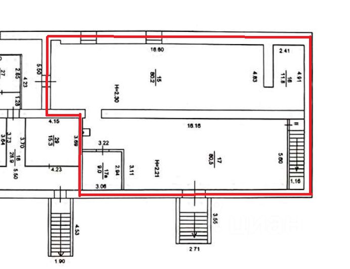
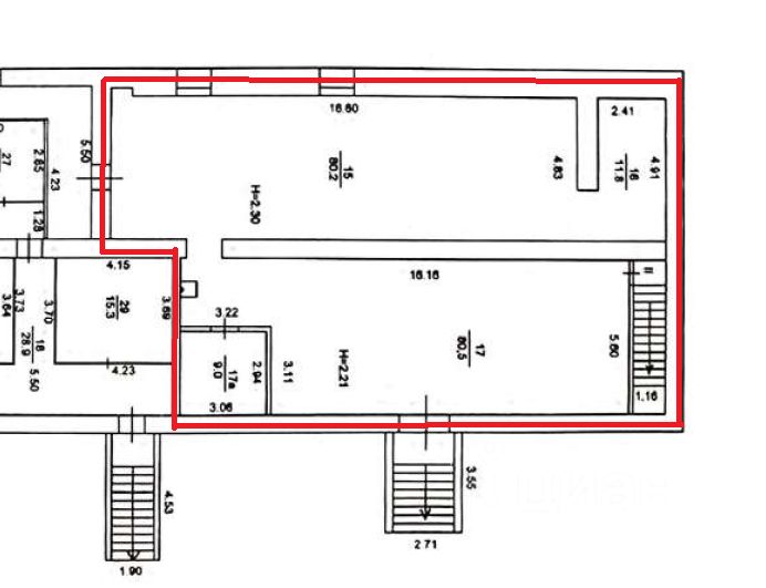
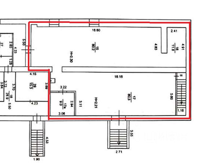
Предлагается в долгосрочную аренду помещение под склад, общей площадью 205,1 кв.м. расположенное на цокольном этаже в бизнес-центре Вернисаж по адресу: г. Тюмень, ул. Ямская, 87а
Удобное месторасположение. Наличие парковки непосредственно перед входом. Возможность размещения вывески на входной группе.
Отдельный вход в помещение цокольного этажа - удобно для погрузки-разгрузки.
Охранно-пожарная сигнализация с выведением сигнала на пульт ЧОП.
Стоимость аренды 490 за кв.м. в месяц. НДС не предусмотрен.
Существует возможность выкупа помещения.
Коммунальные платежи оплачиваются дополнительно. Обеспечительный платеж за один месяц.





