Застройщик - Специализированный застройщик «СтройЛюкс», ООО. Проектная декларация опубликована на сайте наш.дом.рф
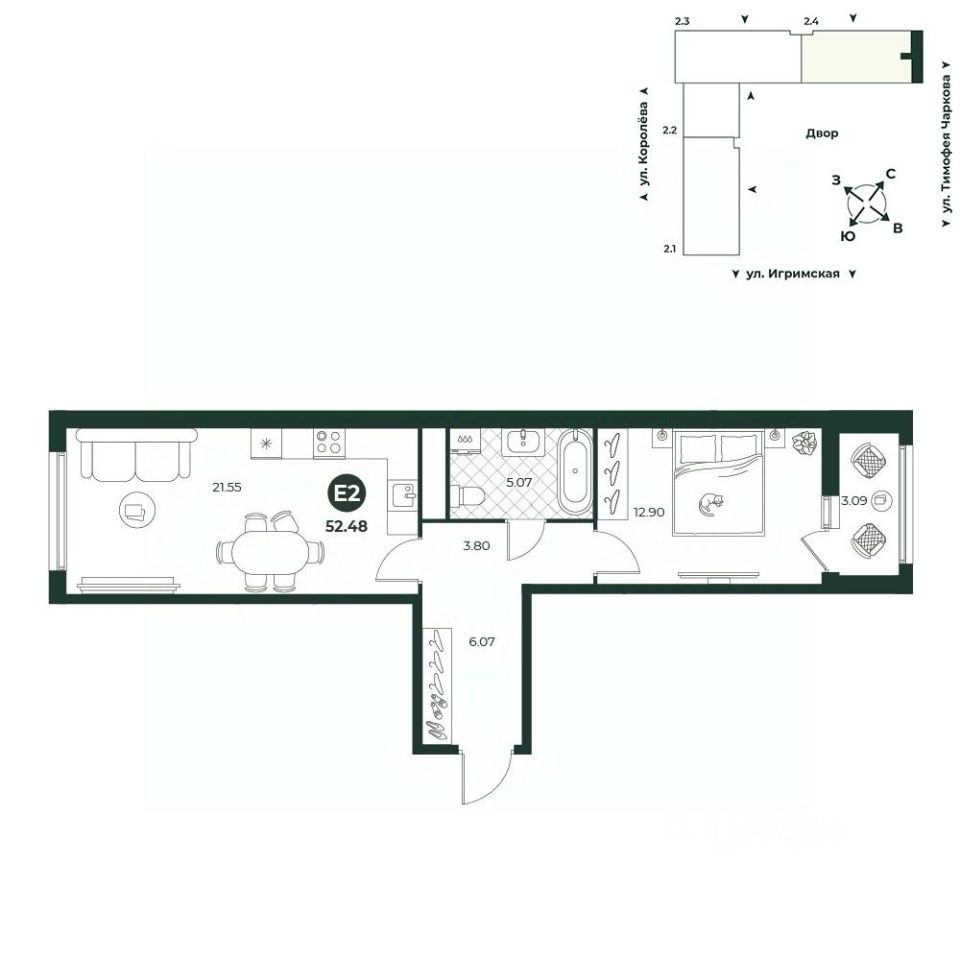
Евродвухкомнатная квартира с просторной кухней-гостиной создает идеальные условия для семейного досуга. Из спальни можно выйти на лоджию. Окна квартиры на две стороны. Санузел совмещенный, площадь позволяет установить стиральную и сушильные машины.