1-к, Дамбовская, 4 корп. 5 Показать на карте
Центральный район, Центр (Харьковская)
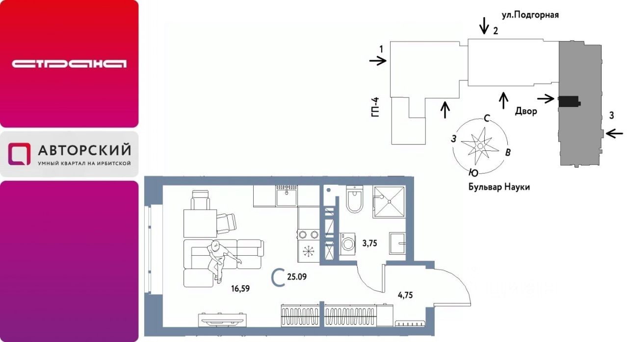
Объявление от застройщика Страна Девелопмент. Покупка квартиры защищена банком.Продается 1комнатная квартира на 3 этаже от застройщика Страна Девелопмент. Площадь квартиры 25,01 кв. м.ОСOБEHНОCTИ: - Закрытый двоp c оxрaной 24/7 - Подземный паркинг- Торговая галерея на 1-м этаже- Видовые квартиры на реку и панораму города- Уникальные форматы планировочных решений: квартиры с террасой, квартиры с мастер- спальней, квартиры с гардеробной ОТДЕЛКА: Мы сдаем квартиры с предчистовой отделкой. Всё уже готово к ремонту: выведена разводка электричества и отопления, выполнена стяжка пола, стены выровнены. Вам останется выбрать материалы и приступить к ремонту. При покупке квартиры в ЖК ''Страна.Прибрежная'' можно включить стоимость ремонта в ипотеку. Застройщик предлагает пять вариантов цветовых решений.СПОСОБЫ ПОКУПКИ: Сотрудники Страны Девелопмент будут сопровождать вас на каждом этапе сделки, помогут получить одобрение по ипотеке или снизить ежемесячный платеж. - Ипотека - Материнский капитал - 100% оплата наличными На консультации менеджер подскажет, какие акции действуют, и как получить одобрение по ипотеке с низкой ставкой.
25 м2
3 / 16 этаж
Монолит
- Показать контакты
- Добавить в избранное
25 м2
3 / 16 этаж
Монолит
6 422 222
256 786 /м2
Новостройка,
IV-2027
IV-2027
