2-к, Разведчика Кузнецова, 10 Показать на карте
Центральный район
Тюмень, Жилой комплекс «Окинава»
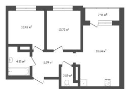
Продается 2-комн. квартира с предчистовой отделкой в ЖК ''Окинава'' на 15 этаже. Общая площадь: 76.77 кв.м., жилая: 34.2 кв.м., площадь просторной кухни-столовой: 22 кв.м. Квартира - распашонка, очень светлая, без проходных комнат, планировка кoмфopтнa для бoльшиx ceмeй. В квартире одна лоджия, два совмещенных санузла. Высота потолков 2.7 м. Квартира будет сдана с предчистовой отделкой: на полах стяжка под финишное покрытие, стены подготовлены под покраску или оклейку обоями, разведена вся электрика с подготовкой для установки выключателей и освещения. При желании вы можете заказать отделку под ключ, варианты возможных решений представлены в альбоме фотографий. Дом монолитный, многоподъездный, переменной этажности, от 13 до 19 этажей. Квартира находится в 4-й секции высотой 16 этажей в корпусе Дом Огня. На этаже 6 квартир. В подъезде 1 пассажирский и 1 грузовой лифт. Окончание строительства - 3 квартал 2027 года. Оформление сделки по договору долевого участия. ЖК ''Окинава'' это не просто жилой комплекс, это остров 4 стихий. Они отражаются во внешнем виде фасадов домов, обустройстве дворов и внутреннем оформлении холлов. Каждая из стихий это отдельный дом. Между домами раскинется большой двухуровневый пешеходный бульвар. Первый уровень прогулочный с местами для отдыха, амфитеатром и фонтанами. На втором уровне расположатся площадки для детей, спортивных игр и тренировок. Квартал будет располагать богатой инфраструктурой: на первых этажах разместятся магазины, пекарни, кофейни, пункты выдачи, аптеки, детские центры, цветочные салоны и многое другое, что сделает жизнь поистине комфортной. В жилом комплексе есть кладовые, а также несколько видов паркинга: уличный гостевой, закрытый теплый и паркинг в стилобате, попасть в который можно на лифте с любого жилого этажа. Дворы в каждом доме отражают его стихию, отличаясь по наполнению. Они дополняют друг друга, образуя единое дворовое пространство жилого комплекса. Закрытая территория, свободная от автомобилей, обеспечит безопасность и спокойный отдых. Холлы оформлены керамогранитом, зеркалами и разноуровневым освещением. Витражные входные группы, мягкие зоны ожидания, видеонаблюдение 24/7, вместительные колясочные и даже лапомойки для питомцев всё это будет в ЖК ''Окинава''. Жилой комплекс ''Окинава'' находится в активно развивающемся V заречном микрорайоне, недалеко от озера Алебашево, где в будущем расположится масштабный ивент-парк с зонами отдыха. Удобная транспортная развязка позволит добраться до центра всего за 15 минут. #24EtMz
76 м2
15 / 16 этаж
Монолит
- Показать контакты
- Добавить в избранное
76 м2
15 / 16 этаж
Монолит
11 325 000
147 519 /м2
Новостройка,
III-2027
III-2027
