3-к, Ивана Быкова, 7 Показать на карте
Калининский район, Утешево
Тюмень
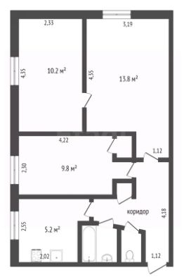
Предлагаем к продаже шикарную, трехкомнатную квартиру, в районе Утешево. Квартира расположена в кирпичном доме 2003 года постройки, с абсолютно новым качественным ремонтом, готовым к заселению. В квартире установлены индивидуальные краны перекрытия отопления, позволяющие гибко регулировать температуру в помещениях. Санузел оснащен функциональной мебелью из влагостойкого МДФ со встроенной подсветкой и электрическим водонагревателем, обеспечивающим бесперебойное горячее водоснабжение в период сезонных отключений. Придомовая территория благоустроена, организована парковка для жильцов. Инфраструктура микрорайона включает магазины, отделение почты, пункты выдачи заказов Ozon, общеобразовательную школу и детский сад в шаговой доступности — не более 300 метров от дома. Транспортное сообщение обеспечивают автобусные маршруты 85 и 127, остановка которых также находится в непосредственной близости. Ключевым преимуществом локации является ее благоприятная экологическая обстановка: близлежащие лесные массивы и поля создают тихую, спокойную атмосферу, минимизируя городской шум. Все жильцы выписаны, правовой статус объекта чистый. Для покупателей доступна услуга бесплатного сопровождения ипотечной сделки с упрощенными условиями одобрения для широкого круга заемщиков, включая клиентов с невысоким официальным доходом, индивидуальных предпринимателей и нерезидентов РФ. Прописка г. Тюмень. МЫ ГАРАНТИРУЕМ ФИНАНСОВУЮ БЕЗОПАСНОСТЬ ДЛЯ НАШИХ КЛИЕНТОВ.Код пользователя: 60087Номер в базе: 10259407
57 м2
3 / 3 этаж
Кирпич
- Показать контакты
- Добавить в избранное
57 м2
3 / 3 этаж
Кирпич
5 000 000
87 260 /м2
