Дом, Малиновая Показать на карте
Центральный район
Тюмень
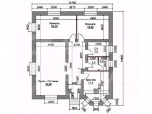
****** Срочно! Торг!! **** Продается классный дом формата 3+ в черте города - район Березняки. Площадь дома - 97,6 кв.м.Городская прописка. Круглогодичный транспорт, автобус 36. Остановка рядом. В Березняках есть новый современный большой детский сад, школа, поликлиника, сетевые магазины. Рядом объездная дорога. До центра города 15 минут на автомобиле без пробок. 550 метров до автобусной остановки!!!! - Дом построен качественно! Продумано все до мелочей! - Фундамент - монолитная плита высотой 300мм- утеплена по всему боковому периметру и по всей поверхности. Выполнена сразу отмостка. - Стены - керамзитоблок + утеплитель. Облицовка - комбинированный кирпич. Качественные пластиковые окна. - Крыша - металлочерепица. Установлены софиты. Чердачное перекрытие утеплено эко-ватой методом надувки. Подшивка перекрытия - пропитанная ОСБ 9мм!!! - В дом заведены все коммуникации: ЦЕНТРАЛЬНОЕ ВОДОСНАБЖЕНИЕ, электричество, канализация (септик 10 кубов), отопление - Установлены - электрический и газовый котлы! Газ заведен в дом. - Внутри дома выполнена разводка воды, канализации и электричества. Предусмотрены дополнительные выводы канализации и воды в котельной (для гостевого туалета и стиральной машины). А также предусмотрены выводы под электроплиту (уменьшение тарифа), под интернет и ТВ. - Высота потолка - 3 метра. -Теплый водяной пол по всему дому. - На полу выполнена сухая стяжка под уровень, стены выровнены под маяк. - Дом расположен на земельном участке правильной формы 5,2 сотки в живописном и уютном месте. Участок огорожен забором из профлиста на металлических столбах. - Само общество граничит с Березняками, где есть вся необходимая инфраструктура. Школа, детский сад, взрослая и детская поликлиника, супермаркеты Магнит, Пятерочка, аптеки, остановки общественного транспорта. Другими словами, здесь есть всё необходимое для комфортной жизни! - Транспортная доступность — на высшем уровне! Общественный транспорт ходит круглый год, а школьный автобус обеспечит безопасный путь для ваших детей. Широкие дороги зимой регулярно очищаются от снега, что делает жизнь комфортной и удобной. - Не упустите шанс стать владельцем этого замечательного дома! Я помогу вам с одобрением ипотеки и отвечу на все ваши вопросы. Свяжитесь со мной, и я организую показ, где подробно расскажу о всех преимуществах этого предложения. Ваш новый дом ждет вас! МЫ ГАРАНТИРУЕМ ФИНАНСОВУЮ БЕЗОПАСНОСТЬ ДЛЯ НАШИХ КЛИЕНТОВ.Код пользователя: 171531Номер в базе: 3794166
97 м2
1 этаж
Бетонные блоки
- Показать контакты
- Добавить в избранное
97 м2
1 этаж
Бетонные блоки
6 450 000
66 086 /м2
