Дом, Липовая, 7 Показать на карте
Центральный район, Три сосны
Тюмень
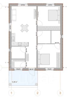
Продается дом премиум-класса в престижном экологическом районе ''Три сосны''. Владение этим домом — это не только статус, но и разумные инвестиции в комфорт и безопасность вашей семьи. Ключевые преимущества, которые оценят самые взыскательные покупатели: Участок ИЖС с городской пропиской. Полная юридическая чистота и все городские льготы. Центральный газ. Значительная экономия на отоплении по сравнению с электричеством или сжиженным газом. Эксклюзивный дизайн. Завершается ландшафтный дизайн с брусчаткой и элегантными клумбами. Уникальный фундамент. Усиленный монолит, служащий вечной отмосткой. Никакого ремонта — только надежность. О доме:Дом построен с применением технологий, рассчитанных на долговечность. Комбинированные стены из блоков с облицовкой кирпичом обеспечивают идеальный микроклимат и солидный внешний вид.Планировка: 1 этаж: просторная кухня-гостиная с выходом на веранду, изолированный кабинет (возможна гостевая комната), санузел, холл, прямой выход в гараж. 2 этаж: три уютные спальни, светлый санузел с окном.Отделка и комфорт: Дизайнерская отделка: декоративная штукатурка, влагостойкая матовая краска премиум-бренда ''Little Greene''. Полный комфорт: электрическое отопление, теплые полы на 1 этаже, бойлер, своя скважина, септик, продуманная вентиляция. Участок: ухоженная территория, плодородная земля без старых насаждений — идеальная основа для вашего сада. БОНУС: Вся мебель и техника, которую вы видите на фото, остаются новому владельцу! Вы въезжаете и начинаете новую жизнь. Номер предложения: 57067.
280 м2
2 этажа
- Показать контакты
- Добавить в избранное
280 м2
2 этажа
28 000 000
100 000 /м2
