Дом, Интернациональная Показать на карте
Пятница ТСН
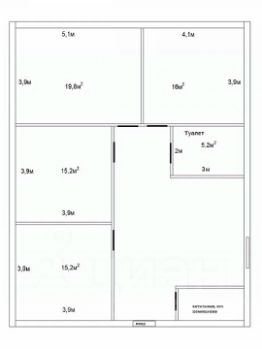
Продается готовый дом без отделки в дачном поселке Пятница 13 км от Автограда по Старому Тобольскому тракту, граничит с поселком Серебряный Бор. Дом 10х8 м, из газоблоков Поревит. Толщина стен 350 мм (300 мм блок, 50 мм утеплитель), фасад оштукатурен (короед), кровля 4-хскатная (металлопрофиль), фронтон закрыт, фундамент, отмостка, потолок утеплены. Установлены пластиковые окна, хорошая входная дверь. Водосточная система имеется. Водопровод, канализация, электричество заведены в дом. Планировка хорошая: 2 спальни, кухня-гостиная, гардеробная, совмещенный санузел, терраса. На участке имеется скважина, установлен септик. Участок большой, 10 соток. Земля плодородная, так как много лет сдавалась фермеру в аренду. Место высокое, вода расположена на уровне 9 м. Дороги в поселке широкие, зимой чистятся, за ними следит правление ТСН. На задах поселка находится смешанный лес, богатый грибами и ягодами. В окружении много водоемов озеро и река Дуван, на другой стороне, в с. Мальково, протекает река Тура, где очень хороший берег. Удобно и купаться и рыбачить. В поселке есть прописка, в школу детей возит бесплатно школьный автобус. Остановка транспорта в 10 минутах ходьбы.
75 м2
1 этаж
- Показать контакты
- Добавить в избранное
75 м2
1 этаж
4 950 000
66 000 /м2
