Дом, Весенняя (Луч СНТ) Показать на карте
Центральный район
Тюмень
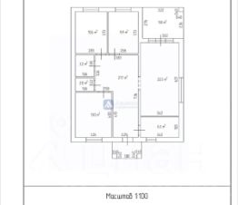
** Подходит под семейную ипотеку с мат. капиталом. ** Продается классный дом формата 3+ в черте города - район Березняки СНТ ''Надежда''. Площадь дома - 90 кв.м. - Дом построен качественно! Продумано все до мелочей! - Фундамент - монолитная плита утеплена по всему боковому периметру и по всей поверхности. Выполнена сразу отмостка. - Стены - керамзитоблок + утеплитель. Облицовка - комбинированный кирпич. Качественные пластиковые окна. - Крыша - металлочерепица. Установлены софиты. Подшивка перекрытия - пропитанная ОСБ 9мм!!! - В дом заведены все коммуникации: центральное водоснабжение, электричество, канализация (септик 10 кубов), отопление - Установлен - электрический котел! - Внутри дома выполнена разводка воды, канализации и электричества. Предусмотрены дополнительные выводы канализации и воды в котельной (для гостевого туалета и стиральной машины). А также предусмотрены выводы под электроплиту (уменьшение тарифа), под интернет и ТВ. - Высота потолка - 3 метра. -Теплый водяной пол по всему дому. - На полу выполнена сухая стяжка под уровень, стены выровнены под маяк. - Участок огорожен забором из профлиста на металлических столбах. - Само общество граничит с Березняками, где есть вся необходимая инфраструктура. Школа, детский сад, взрослая и детская поликлиника, супермаркеты Магнит, Пятерочка, аптеки, остановки общественного транспорта. Другими словами, здесь есть всё необходимое для комфортной жизни! - Транспортная доступность — на высшем уровне! Общественный транспорт ходит круглый год, а школьный автобус обеспечит безопасный путь для ваших детей. Широкие дороги зимой регулярно очищаются от снега, что делает жизнь комфортной и удобной. - Не упустите шанс купить дом в районе Березняки! Я помогу вам с одобрением ипотеки и отвечу на все ваши вопросы. Свяжитесь со мной, и я организую показ, где подробно расскажу о всех преимуществах этого предложения. Ваш новый дом ждет вас!МЫ ГАРАНТИРУЕМ ФИНАНСОВУЮ БЕЗОПАСНОСТЬ ДЛЯ НАШИХ КЛИЕНТОВ.Код пользователя: 163957Номер в базе: 9946044
90 м2
1 этаж
Бетонные блоки
- Показать контакты
- Добавить в избранное
90 м2
1 этаж
Бетонные блоки
7 999 000
88 878 /м2
