Таунхаус, Василия Борисова Показать на карте
Калининский район
Тюмень
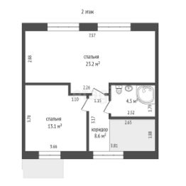
Продается таунхаус в ЖК ''Зеленые аллеи''! ''Зеленые аллеи'' — это современный малоэтажный квартал в престижном пригороде Тюмени, неподалеку от Цимлянского озера, спроектированный в духе современного европейского пригорода. Стены выполнены в три слоя: облицовочный керамический кирпич, минераловатный утеплитель и керамзитобетон. Перекрытия сделаны из железобетона, а высота потолков - до 3 метров. Установлены качественные энергосберегающие окна и качественная входная дверь. Отдельная вентиляция и дымоход с выходом на крышу. Для отопления используется собственный двухконтурный газовый котел. Особенности планировки:- 2 спальни на втором этаже, одна из которых со своей гардеробной и кухня- гостинная на первом этаже,- мансардный этаж: 20 кв.м, в котором можно организовать спорт-зал, бильярдную, собственный кинотеатр с возможностью зонирования по вашему вкусу.- санузел на каждом этаже,- кладовка при входе для хранения инвентаря с выведеной мокрой точкой для полива газона, либо организации мойки. Ремонт:- Современный дизайн: комфортный интерьер с нейтральными тонами, в который впишется любая мебель. Стены на первом этаже окрашены, на втором этаже поклеины обои. На полу первого этажа ламинат, на втором этаже пробковое покрытие.- подогреваемый пол на первом этаже, частично от электричества, частично от горячей воды.Удобства и безопасность:- Зона для парковки перед домом.- На въезде в квартал установлен шлагбаум. Главные точки притяжения внутри квартала оборудованы системами видеонаблюдения, контролируемыми с единого пульта охраны. - Собственный парк с озером для прогулок и отдыха на природе.Транспортная доступность: До города можно добраться на автобусе 71, 3 минуты до объездной дороги и всего 800 метров до села Луговое. Помимо этого, муниципальный автобус возит детей в школу.Инфраструктура:Развита торговая и развлекательная инфраструктура. Здесь работает супермаркет Пятерочка, Монетка, Красноое-белое, Светлое-темное, пекарни, кофейни, пункты выдачи заказов маркетплейсов, салоны красоты, цветочный салон, детский досуговый центр, аптека, лицензированный частный детский сад.Для пррогулок и любителей самокатов и велосипедов оборудованы дорожки, для занятий спортом-спортивная зона с футбольным полем, баскетбольной и волейбольной площадкой, зона мягкого фитнеса, воркаут-площадка, тенисный стол, памп-трек с безопасным покрытием для любителей вело трюков в зимнее время работает каток.Не упустите возможность стать владельцем этого замечательного таунхауса! Все документы в полном порядке, обременений и детских долей нет, один взрослый собственник. МЫ ГАРАНТИРУЕМ ФИНАНСОВУЮ БЕЗОПАСНОСТЬ ДЛЯ НАШИХ КЛИЕНТОВ.Код пользователя: 54167Номер в базе: 12153837
84 м2
2 этажа
Кирпич
- Показать контакты
- Добавить в избранное
84 м2
2 этажа
Кирпич
10 300 000
121 749 /м2
