2-к, Вадима Бованенко, 11 Показать на карте
Калининский район, Тюменская слобода
Тюмень, Скандиа.Квартал в Слободе
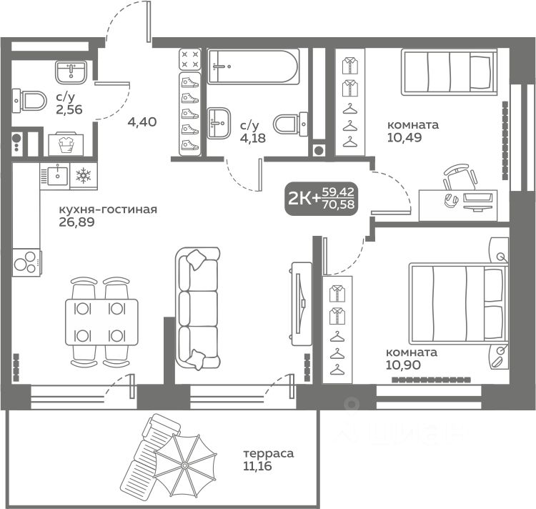
Квартира 371 на 8 этаже. ''Скандиа. Квартал в Слободе'' — современная комплексная застройка в развитом районе, состоящая из двух домов переменной этажности и двух многоуровневых паркингов. Доминантами проекта станут две 24-этажные секции.Квартал расположен через дорогу от гимназии 4, рядом со сквером Вьюжный и лесопарком. В шаговой доступности 2 детских сада, остановка общественного транспорта, поликлиника, магазины и кофейни. Квартира с 2 спальнями площадью 78,46 кв.мПродуманная геометрия комнат позволит легко зонировать пространство и подобрать необходимую мебель.В кухне-гостиной комфортно вместе готовить, проводить семейные ужины или настольные игры с друзьями.Один из двух санузлов можно оборудовать под функциональную постирочную. Необходимые коммуникации уже проведены, осталось только подключить стиральную машину и организовать место для сушки вещей.
78 м2
8 / 24 этаж
Кирпич - монолит
- Показать контакты
- Добавить в избранное
78 м2
8 / 24 этаж
Кирпич - монолит
9 850 500
125 548 /м2
Новостройка,
IV-2026
IV-2026
