logo
N1.RU — новая улучшенная версия Е1.Недвижимость
Чтобы вернуться на старый сайт Е1.Недвижимость, перейдите по ссылке в нижней части сайта N1.RU
  • Продажа
  • Аренда
  • Новостройки
  • Журнал
  • Компании
  • Оценка
  • Шаблоны документов
  • Налоговый вычет
  • Еще
  • Личный кабинет
    • Вход
    • Регистрация
    • Тюмень
  • Добавить объявление
Тип недвижимости
Тюмень
Поиск в любом из этих мест
Центральный район, Тюмень
  • Район и микрорайон
Количество комнат
Цена
  1. Недвижимость в Тюмени
  2. Продажа
  3. Квартиры
  4. Новостройки
  5. Многокомнатные
  6. Центральный район
  7. 7 объявлений

Продажа многокомнатных квартир в Центральном районе районе в Тюмени

За все время
Сортировка по умолчанию
СпискомСписком
ТаблицейТаблицей
На картеНа карте
Открыть поиск по карте

По вашему запросу объявлений не найдено

1/20
5-к, Дзержинского, 12/1 стр. Показать на карте
Центральный район, Центр (Исторический)
Тюмень, Жилой комплекс «Челюскинцев 5»
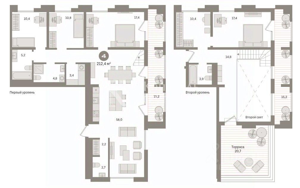
Двухуровневая квартира в квартале премиум-класса. Это исторический центр города: рядом главные улицы, набережная, топовая гастрономия — и всё это в окружении памятников архитектуры. На первом уровне предусмотрена мастер-спальня со сквозной гардеробной, детская, кухня-столовая, гостиная и ванная с окном.Второй уровень — приватный. Здесь располагаются спальня, комната отдыха, постирочная и гардеробная. С террасы площадью 103,1 м² на последнем этаже открывается вид на весь центр. Здесь можно организовать летнюю кухню, камерный кинотеатр с игровой или фитнес-зону. Выход на террасу со второго уровня.Окна выходят на три стороны, поэтому в комнаты проникает много естественного света. Высота окон — 2,4 метра. В столовой, гостиной и спальне спроектированы радиусные окна для бесшовного обзора. Профили выполнены из золотистого алюминия. Витражи с тройным остеклением и двухкамерным стеклопакетом. Они не пропускают холод и жар — это сохраняет комфортный микроклимат в квартире.Внутри пола встроены бесшумные конвекторы. Они создают естественную циркуляцию теплого воздуха и не загораживают вид из окна. Узнать детали проекта и договориться о персональной презентации можно по номеру, указанному в объявлении.
274 м2
8 / 9 этаж
Кирпич - монолит
  • Показать контакты
  • Добавить в избранное
274 м2
8 / 9 этаж
Кирпич - монолит
65 660 000 
239 111 /м2
Новостройка,
IV-2027
1/2
5-к, Щербакова, 2 корп. 3 Показать на карте
Центральный район, Старая Зарека
Тюмень, Архитектурный ансамбль Вознесенский
Продается 5-комнатная квартира на 6-м этаже площадью 167.77 кв.м с панорамным видом на Мост Влюбленных, Вознесенскую Набережную и парк. Высокие потолки - от 3.32м. Свободная планировка.
167 м2
6 / 7 этаж
Кирпич - монолит
  • Показать контакты
  • Добавить в избранное
167 м2
6 / 7 этаж
Кирпич - монолит
55 697 459 
331 987 /м2
Новостройка,
IV-2027
1/2
5-к, Щербакова, 2 корп. 6 Показать на карте
Центральный район, Старая Зарека
Тюмень, Архитектурный ансамбль Вознесенский
Продается 5-комнатная квартира на 8-м этаже площадью 189.29 кв.м с панорамным видом на Мост Влюбленных, Вознесенскую Набережную и парк. Высокие потолки - от 3.32м. Свободная планировка.
189 м2
8 / 8 этаж
Кирпич - монолит
  • Показать контакты
  • Добавить в избранное
189 м2
8 / 8 этаж
Кирпич - монолит
56 372 644 
297 811 /м2
Новостройка,
IV-2027
5-к, Щербакова, 2 корп. 5 Показать на карте
Центральный район, Старая Зарека
Тюмень, Архитектурный ансамбль Вознесенский
абракадабра--------------------Продажа квартира в новостройке, Тюмень, улица Щербакова, 2к5--------------------
174 м2
7 / 7 этаж
Кирпич - монолит
  • Показать контакты
  • Добавить в избранное
174 м2
7 / 7 этаж
Кирпич - монолит
55 264 721 
317 540 /м2
Новостройка,
IV-2027
5-к, Щербакова, 2 корп. 3 Показать на карте
Центральный район, Старая Зарека
Тюмень, Архитектурный ансамбль Вознесенский
Продается 5-комнатная квартира на 6-м этаже площадью 198.5 кв.м с панорамным видом на Мост Влюбленных, Вознесенскую Набережную и парк. Высокие потолки - от 3.32м. Свободная планировка.
198 м2
6 / 7 этаж
Кирпич - монолит
  • Показать контакты
  • Добавить в избранное
198 м2
6 / 7 этаж
Кирпич - монолит
89 392 486 
450 340 /м2
Новостройка,
IV-2027
1/2
5-к, Щербакова, 2 корп. 3 Показать на карте
Центральный район, Старая Зарека
Тюмень, Архитектурный ансамбль Вознесенский
Продается 25-комнатная квартира на 1-м этаже площадью 701.3 кв.м с панорамным видом на Мост Влюбленных, Вознесенскую Набережную и парк. Высокие потолки - от 3.32м. Свободная планировка.
701 м2
1 / 7 этаж
Кирпич - монолит
  • Показать контакты
  • Добавить в избранное
701 м2
1 / 7 этаж
Кирпич - монолит
231 429 000 
330 000 /м2
Новостройка,
IV-2027
1/50
5-к, Тимофея Кармацкого, 3 Показать на карте
Центральный район
Тюмень, Жилой комплекс LIFE RESIDENCE квартал и парк
ЖК Life Residence | 5 комнат | Вид на парк, 2 а| Мечтаете о доме, куда хочется возвращаться? В нашем ЖК премиум-класса это станет реальностью.Квартира с продуманной планировкой специально для большой и дружной семьи. Высота потолков 3,2 м кв. Без детских долей и использования материнского капитала. А что вы увидите за окном? Настоящую магию!Великолепный парк и стильный дизайнерский двор вместо серых улиц.Живописные рассветы и закаты в любом сезоне — ваше личное ежедневное шоу.Полная тишина и покой. Забудьте о шуме машин и соседях. Только вы и красота вокруг. Вас ждёт ключ от абсолютно новой 5-комнатной квартиры на 9 этаже. 5 изолированных комнат и 3 санузла — полная свобода для дизайна. Вид на Корейский парк и центр — лучшая видовая в проекте. Всего 2 квартиры на этаже — тишина и уединение гарантированы. Дом сдан, все недочёты устранены — можно начинать ремонт хоть завтра!Приходите на просмотр ! Убедитесь сами, как прекрасно может быть ваше будущее. Дополнительно оплачивается комиссия с покупателя. Номер объекта: 1831070
135 м2
9 / 9 этаж
Кирпич - монолит
  • Показать контакты
  • Добавить в избранное
135 м2
9 / 9 этаж
Кирпич - монолит
19 800 000 
146 341 /м2
Новостройка,
дом сдан
    Распечатать

    Вместе с этим также ищут:

    Продажа квартир в Тюмени Продажа однокомнатных квартир в Тюмени Продажа комнат в Тюмени Продажа гаражей в Тюмени Продажа вторички - квартиры в Тюмени Квартиры в новостройках в Тюмени

    🏠 Как купить многокомнатную квартиру в Тюмени на N1?

    • ✔ В поисках объявления о продаже или покупке квартир в Тюмени?
    • ✔ На N1 размещены 7 квартир
    • ✔ Чтобы купить или продать недвижимость, воспользуйтесь формой поиска, фильтрами или быстрыми ссылками.

    💸 Сколько стоит многокомнатная квартира в Тюмени?

    • 🟢 Средняя цена продажи многокомнатных квартир - 81,95 млн ₽
    • 🟢 Минимальная стоимость за 1 м2: 301,88 тыс ₽

    📚 Какая площадь многокомнатных квартир?

    • Наибольшая площадь: 701 м²
    • Минимальная площадь: 135 м²