1-к, Иркутская, 14 корп. 1 Показать на карте
Калининский район, ДОК
Тюмень, Жилой комплекс «Остров-сад»
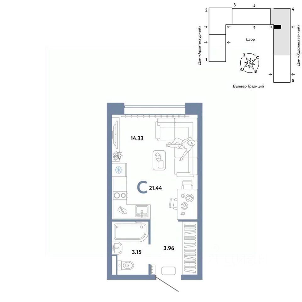
Новая квартира в ЖК ''Остров-сад'' напрямую от федерального застройщика ''Страна Девелопмент''.Продается 1комнатная квартира на 9 этаже от застройщика Страна Девелопмент. Площадь квартиры 23,44 кв. м.Жилой комплекс ''Остров-сад'' — квартал от федерального застройщика ''Страна Девелопмент'' в районе ДОК-а. Микрорайон окружён Турой с трёх сторон, а находится в 10 минутах от Цветного бульвара на авто. Внутри бульвар ''Открытий'', благоустроенная набережная для прогулок и живописная природа вокруг. ПреимуществаУ каждого дома обустроен приватный двор с зонами для активного и спокойного отдыха. В активной зоне детские разновозрастные площадки с горками, песочницами и качелями, воркаут-зоны. В спокойной — релакс-зоны на свежем воздухе: шезлонги, большие качели под навесом, удобные кресла и беседки для душевных разговоров, уютной атмосферу сделает обильное озеленение.В проекте запланировано 3 детсада и 2 школы.ЖК построен по принципу мини-города. Всё необходимое для жизни внутри микрорайона. В шаговой доступности — магазины, аптеки, парикмахерские, пекарни, семейные кафе и уютные кофейниОтделкаКвартиры сдаются с предчистовой отделкой: произведена разводка электричества и отопления, выполнена стяжка пола, стены выровнены ''под маяк'', установлены радиаторы. Дизайнерская отделкаПри покупке квартиры в ЖК ''Остров-сад'' можно включить стоимость ремонта в ипотеку. 4 стиля отделки ванной и 5 стилей отделки комнат на выбор. Включено всё — обои, ламинат, натяжной потолок и даже кондиционер. Также для вас есть четыре варианта ремонта в ванной — акриловая ванна с экраном, смеситель с лейкой, подвесной унитаз, зеркало с подсветкой. Останется только разместить мебель! Кухня от застройщика Одна из удобных опций от Страны — приобретение кухни в ипотеку при покупке опции ''Ремонт''. Доступно 4 стиля на выбор: дерево, керамика, мрамор, бетон. Умный домСистема ''Умный дом'' создаст новый уровень комфорта. Управление светом с помощью голоса, получение последней информации о ситуации в квартире во время отпуска или рабочего дня — и другие преимущества включены в пакет.Способы покупкиСотрудники ''Страна Девелопмент'' будут сопровождать вас на каждом этапе сделки, помогут получить одобрение по ипотеке или снизить ежемесячный платеж.- ипотека- рассрочка- с использованием материнского капитала - 100% оплата наличными
23 м2
9 / 20 этаж
Монолит
- Показать контакты
- Добавить в избранное
23 м2
9 / 20 этаж
Монолит
4 911 111
209 518 /м2
Новостройка,
IV-2027
IV-2027
