2-к, Андрея Бушуева, 1 корп. 1 Показать на карте
Калининский район, Тюменская слобода
Тюмень, Уездные кварталы
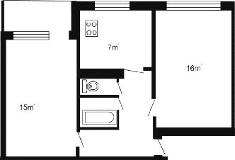
Продается 2-комн. квартира в ЖК ''Уездные кварталы'' на 3 этаже. Квартира без отделки, новый владелец может сделать ремонт по индивидуальному проекту. Общая площадь: 68.2 кв.м., жилая: 25.7 кв.м., площадь просторной кухни-столовой: 23.3 кв.м. Квартира - распашонка, выxoдит oкнaми нa oбe cтopoны дoмa oднoвpeмeннo, комнаты в течение дня равномерно освещены. В квартире один балкон, два совмещенных санузла. Высота потолков 2.72 м. Дом монолитный, черырехподъездный, переменной этажности, от 9 до 16 этажей. Квартира находится в 4-й секции высотой 9 этажей в корпусе ГП-5.2. На этаже 6 квартир. В подъезде 1 пассажирский и 1 грузовой лифт. Окончание строительства - 4 квартал 2026 года. Оформление сделки по договору долевого участия. ''Уездные кварталы'' - семейный жилой комплекс комфорт-класса с авторской архитектурой и трехуровневым ландшафтным озеленением. Рядом расположены крупные транспортные развязки, которые позволяют добраться в любую точку города за 15 минут. Жилой комплекс находится в современном районе с развитой инфраструктурой, на первой линии Тюменской Слободы. Вокруг есть всё необходимое в шаговой доступности: новые детские сады и школы, остановки общественного транспорта, магазины, кафе и рестораны, поликлиника, детская школа искусств, парки и спортивный комплекс. На первых этажах квартала расположена собственная коммерческая сеть, а также свой соседский центр. Проект включает 5 домов переменной этажности с более чем 100 планировками - с террасами, французскими балконами и мастер-спальнями. Закрытые дворы оборудованы интерактивными площадками для игр, спортивными зонами и местами тихого отдыха. Вдоль жилого комплекса расположен пешеходный бульвар с сухим фонтаном, а для автомобилей предусмотрен теплый паркинг. Часть квартир можно приобрести с ремонтом, мебелью и техникой от застройщика, а расходы включить в ипотечный платеж. #2MSeZZ
68 м2
3 / 9 этаж
Монолит
- Показать контакты
- Добавить в избранное
68 м2
3 / 9 этаж
Монолит
9 000 000
131 965 /м2
Новостройка,
IV-2026
IV-2026
