2-к, Интернациональная, 199 корп. 9 Показать на карте
Калининский район
Тюмень, Юнион
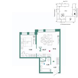
Продается 2комнатная квартира в новом ЖК ''Юнион''. Общая площадь квартиры 38,46 кв. м. Сдача — в 3 квартале 2024 года.Юнион - проект двух застройщиков всероссийского масштаба: Страны Девелопмент и Группы Эталон. Мы объединили опыт и компетенции в девелопменте, создании экологичной среды, разработке ландшафтного дизайна, коммерческой инфраструктуры и продуманных планировок. Результатом синергии станет комфортное пространство для жизни, отдыха и восстановления.Рядом два парка с хвойными и смешанными лесами — ''Затюменский'' и ''Плехановский бор''. Летом можно устраивать пикники, а зимой кататься по лыжным трассам.ОТДЕЛКАКвартиры сдаются с предчистовой отделкой. Все грязные работы выполнены: произведена разводка электричества и отопления, выполнена стяжка пола, стены выровнены ''под маяк''. В квартире установлены розетки, выключатели и радиаторы. На входе — надежная стальная дверь. Вам остается только выбрать материалы и начать ремонтДоступна опция ''Ремонт от застройщика''. Стоимость можно включить в ипотеку. Вы можете заказать один из трех цветовых вариантов: светлый, натуральный или тёмный. КУХНЯ С ТЕХНИКОЙТеперь дополнительно к ремонту можно заказать кухню со встроенной техникой. Эргономику и функциональное наполнение разработали под каждую планировку. ПОЛНАЯ МЕБЛИРОВКАБольше не нужно тратить время даже на подбор, доставку и сборку мебели.Вы можете включить в стоимость квартиры с ремонтом полную меблировку.Что входит в меблировку?- Кухня с техникой и сантехникой- Диван- Кровать- Шкаф в спальне- Шкаф в прихожейЦены на квартиры указаны без учета скидок. На консультации менеджер подскажет, какие акции действуют, и как получить одобрение по ипотеке с низкой ставкой. Более подробная информация по телефону.Застройщик ООО СЗ ''Страна-Эталон''. Проектные декларации на сайте наш.дом.рф.
38 м2
12 / 16 этаж
Монолит
- Показать контакты
- Добавить в избранное
38 м2
12 / 16 этаж
Монолит
6 188 889
160 918 /м2
Новостройка,
дом сдан
дом сдан
