1-к, Боровская, 33 Показать на карте
Восточный район, Войновка
Тюмень
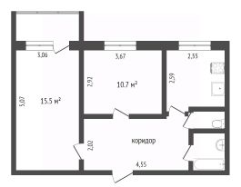
СРОЧНО продается квартира в кирпичном домеО КВАРТИРЕ: - площадь 32,9 м2,- Площадь кухни 10,6 кв.м, комнаты 14,45 кв.м, большая лоджия 6 кв.м,- Квартира теплая и уютная, выполнен косметический ремонт в спокойных тонах: на стенах во всей квартире обои, на полу ламинат, пластиковые окна, балкон застеклен.,- При продаже в квартире остается вся мебель и бытовая техника представленные на фото. О ДОМЕ и РАЙОНЕ:- Дом кирпичного исполнения, стены дома отличаются хорошей звукоизоляцией. - Дом расположен на удалении от шумных транспортных магистралей, т.е. отсутствуют посторонние шумы с улицы. - В квартире много света, поскольку за окном нет многоэтажной застройки. В подъезде большой грузовой лифт. - Все необходимое рядом, а именно: ТЦ ''Окей'', ''Магнит'', Транспортный колледж, две школы (третья строится), Поликлиника 12, детские сады, парк-сквер ''Серебряные ключи''. - Отличная транспортная развязка. В 3-х минутах ходьбы - остановка экспресс- автобуса 35, который до центра едет 30 минут. - Рядом лесной массив (5 минут на машине или около 20-30 минут пешком), в котором располагается б/о ''Пруд ''Лесной'', где можно отдохнуть с друзьями, родными и близкими. Не упустите свой шанс стать счастливым обладателем этой замечательной квартиры, звоните прямо сейчас и запишитесь на просмотр.МЫ ГАРАНТИРУЕМ ФИНАНСОВУЮ БЕЗОПАСНОСТЬ ДЛЯ НАШИХ КЛИЕНТОВ.Код пользователя: 54173Номер в базе: 9779751
32 м2
2 / 9 этаж
Кирпич
- Показать контакты
- Добавить в избранное
32 м2
2 / 9 этаж
Кирпич
4 400 000
133 739 /м2
