1-к, Петра Ершова, 12 Показать на карте
Патрушева, ЖР «Никольский»
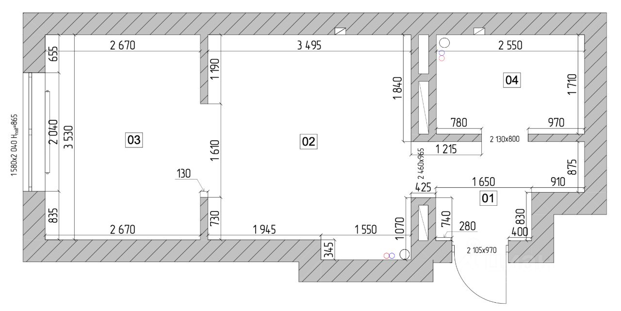
Продается 1-комн. квартира с первичной отделкой в Велнес-квартал Никольский на 12 этаже. Общая площадь: 35.66 кв.м., жилая: 11.89 кв.м., площадь просторной кухни-столовой: 14.48 кв.м. Все окна выходят на одну сторону. В квартире одна лоджия, один совмещенный санузел. Высота потолков 2.74 м. Дом монолитный, многоподъездный, переменной этажности, от 12 до 17 этажей. Квартира находится в 1-й секции высотой 14 этажей в корпусе ГП-57. На этаже 8 квартир. В подъезде 1 пассажирский и 1 грузовой лифт. Окончание строительства - 4 квартал 2024 года. Оформление сделки по договору долевого участия. Велнес-квартал Никольский располагается на Червишевском тракте в районе коттеджных застроек Комарова и Патрушева, в удалении от загруженных городских улиц, пробок и пыли. Идеальное место для тех, кто следит за собой, стремится быть активным и продуктивным, придерживается принципов разумного потребления и думает о здоровье и благополучии близких. Поблизости располагается развитая инфраструктура Тюменской слободы и д. Патрушева со школами, детскими садами, магазинами и супермаркетами, аптеками, салонами услуг и другими социально-значимыми объектами. Благодаря отличной транспортной доступности отсюда до центра города на автомобиле всего 15-20 минут, а дорога до крупных ТРЦ (Колумб, Кристалл, Ашан, Лента и Метро) - займет около 5-7 минут. Все квартиры готовы к чистовому ремонту, все грязные работы уже сделаны - выравнивание стен и пола, разводка электрики и остекление лоджий. Хранить велосипеды, снегокаты и санки можно в колясочных, они есть в каждом доме. Внутри предусмотрено дополнительное освещение, так как мы устанавливаем большие окна. Доступ и возможность пользования есть только у жителей дома. Во всех колясочных просторно и места хватит всем. Проектом предусмотрены закрытые дворы без машин, а парковки расположатся за пределами дворов и игровых зон. На территории велнес-квартала своя собственная Fitness-инфраструктура: поля для игровых видов спорта, тренажеры и детские скалодромы. Поблизости в проекте 3 детских сада и школа. Круглосуточное видеонаблюдение по всей территории, экологически чистые материалы, благоприятная роза ветров, безопасные детские площадки, свежий лесной воздух и целебные сорта хвойных деревьев во дворах и бактерицидные инфракрасные лампы в общественных местах. Аккредитация в банках: ''Сбербанк России'', ОАО ''Альфа-Банк'', ПАО ''Газпромбанк'', ПАО Банк ''ВТБ'', АО ''ДОМ.РФ'' и других. #2osz6M
35 м2
12 / 17 этаж
Монолит
- Показать контакты
- Добавить в избранное
35 м2
12 / 17 этаж
Монолит
4 470 000
125 351 /м2
Новостройка,
дом сдан
дом сдан
