Универсальное помещение
Орджоникидзе, 62 Показать на карте
Орджоникидзе, 62 Показать на карте
Калининский район, Центр (администрация)
Тюмень
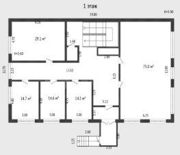
Внимание!!!!! Сдаю в аренду нежилое помещение.110 м2.Первый этаж пятиэтажного жилого дома.В центре города.Улица Орджоникидзе .Отличный трафик.Планировка свободная.Подходит под любой бизнес.Два входа.ОБРАТИТЕ ВНИМАНИЕ! АРЕНДА КОММЕРЧЕСКОЙ НЕДВИЖИМОСТИ ЧЕРЕЗ КОМПАНИЮ ''ЭТАЖИ'' БЕЗ КОМИССИИ ДЛЯ АРЕНДАТОРА!Подходит для: Аптека, Банк, Частный детский сад, Кофейня, Кафе, бар, ресторан, Кальянная, Косметология, Магазин продовольственный, Магазин непродовольственный, Медцентр, Офис, Общепит / Столовая, Пекарня, Пивбар, разливные напитки, Салон красоты / Парикмахер., Цветочный магазин, СтоматологияКод пользователя: 120524Номер в базе: 10622688
110 м2
- Показать контакты
- Добавить в избранное
110 м2
135 000 /мес.
1 227 /м2
