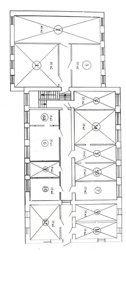
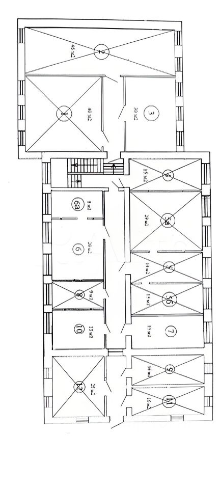
Офисные помещения 13,30,46 м2 находится на втором этаже офисного здания. Территория заасфальтирована. Отопление газовая котельная, вода скважина, септик. В офисе установлен кондиционер и тёплый пол, приточная/вытяжная вентиляция, пожарная сигнализация. Бесплатная парковка. Рядом находится центральный склад ТК Сдэк и другие ТК. Недалеко от окружной дороги (внутренне кольцо). Доступ круглосуточный. Коммунальные услуги оплачиваются дополнительно.