Дом, Дачная Показать на карте
Тюнево
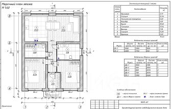
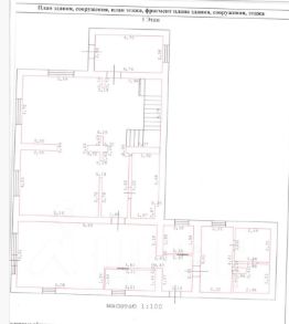
В продаже дом по Велижанскому тракту в село Тюнево.Дом 150 м2 на участке 18 соток с вековыми соснами.Дом построен опытным и надежным застройщиком в области индивидуального домостроительства в Тюмени.На первом этаже дома вас встречает светлая и просторная прихожая, санузел, котельная. Здесь же расположена кухня-гостиная, из которой открывается выход на задний двор — идеальное место для отдыха на свежем воздухе. Также на первом этаже находится спальня. На втором этаже, вы попадаете в зону, где разместились три спальни, просторный санузел и вместительная гардеробная.Проведена система теплого пола по периметру всего дома плюс радиаторы. Установлен газовый котел, водоснабжение центральное, канализация септик.Дом построен из керамзитоблока, с утеплением 100 ППС и облицован керамическим кирпичом. Фундамент - монолитная плита. Мягкая кровля.Дом сдается с пред чистой отделкой с возможностью выполнения ремонта как на фото либо под вас.На участке так же есть большой гараж на один автомобиль где с легкостью можно разместить большой внедорожник либо спецтехника.Строение под баню куда уже заведены коммуникации, газ, электричество. Сделана купель. Отличный способ расслабиться и укрепить здоровье.На участке растут вековые сосны, участок имеет свой выход в лесной массив.Дом окружен лесным массивом, что гарантирует чистый воздух и умиротворённую атмосферу.Село Тюнево — это: экологически чистый район Тюменской области,спокойная загородная жизнь без отрыва от цивилизации,развитая инфраструктура для комфортной жизни всей семьи ( школа, детский сад, медицинский пункт и сетевые магазины),удобная транспортная доступность — легко добраться до города в любое время. Возможна ипотека (в том числе льготные программы). Номер предложения: 62575.
150 м2
2 этажа
- Показать контакты
- Добавить в избранное
150 м2
2 этажа
13 800 000
92 000 /м2
