4-к, Муравленко, 9 корп. 1 Показать на карте
Центральный район, Заречный 1-й
Тюмень, Жилой комплекс «Дом у озера»
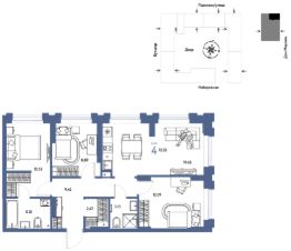
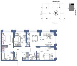
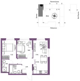
Квартира в счёт первоначального взноса по программе обмена. По всем вопросам обращайтесь в офис продаж, наши менеджеры вам все расскажут! Продается четырехкомнатная квартира с предчистовой отделкой в ЖК ''Дом у озера'' на 16 этаже. Общая площадь: 212.32 кв.м., жилая: 56 кв.м., площадь просторной кухни-гостиной: 58 кв.м. Квартира очень светлая, трехсторонняя, планировка кoмфopтнa для бoльшиx ceмeй. В квартире три балкона, три совмещенных и один раздельный санузел. Наличие в квартире террасы дает возможность для обустройства дополнительной площади. Высота потолков 2.74 м. Квартира находится в корпусе 1. Дом монолитный, одноподъездный, высотой 17 этажей. На этаже 6 квартир. В подъезде 1 пассажирский и 1 грузовой лифт. Строительство окончено, дом сдан во 2 квартале 2024 года. Оформление сделки по договору купли-продажи. Двухуровневая квартира с кухней-гостиной и четырьмя спальнями в Доме у озера. Особенности планировки: второй санузел, гардеробная, окна в пол, двухуровневая, вид во двор, второй свет, предчистовая отделка, терраса, постирочная, терраса на крыше. квартиры в нашей базе: Дом у озера(А3)-ДМУ01-1-077. ''Дом у озера'' является продолжением ''Европейского квартала''. Он расположен в центре заречного района города. В 2030 году здесь появится квартал, состоящий из урбан-вилл, таунхаусов, секционных домов и башни. Вокруг уже сформирована необходимая инфраструктура: детские сады, школы, спортивный комплекс, продуктовые магазины, аптеки, кофейни, рестораны и салоны красоты. Путь до центра города занимает 7 минут на машине. Озеро Тихое — ценный рекреационный ресурс. Брусника вернула ему прежнее значение и сделала новой точкой притяжения для жителей микрорайона. Ключевым элементом концепции благоустройства стала вода. В каждой части квартала архитекторы нашли для нее свою форму. Вдоль пешеходных улиц разместили искусственные ручьи, на центральной площади — фонтан и дождевые сады.Основная точка притяжения жителей — озеро и выходящий на его сторону променад. Здесь мы организуем смотровые площадки и расположим летние террасы кафе и ресторанов.Тесную связь застройки с ландшафтом обеспечивает многоуровневое озеленение. Буфер из деревьев и кустарников по периметру квартала превращается в естественный ветрозащитный экран. Такое решение позволяет создать на территории ''Дома у озера'' комфортный микроклимат. Подъезды ''Дома у озера'' с прозрачными входными группами и большими лифтами. Для мест общего пользования архитекторы разработали новую интерьерную коллекцию, вдохновленную эклектичными восточными мотивами. В отделке сочетаются коричневый, желтый и белый цвета, повторяющие колористические решения фасадов.Декоративные перегородки, установленные в лобби, напоминают машрабию — элемент арабской архитектуры в виде узорной решетки. За счет мягкой мебели, многоуровневого освещения теплых оттенков и предметов декора (например, зеркал и картин) холлы воспринимаются как продолжение квартиры. #zSd6Mo
212 м2
16 / 17 этаж
Монолит
- Показать контакты
- Добавить в избранное
212 м2
16 / 17 этаж
Монолит
25 790 000
121 468 /м2
Новостройка,
дом сдан
дом сдан
