Офисное помещение
Володарского, 17 Показать на карте
Володарского, 17 Показать на карте
Центральный район, Центр (Исторический)
Тюмень
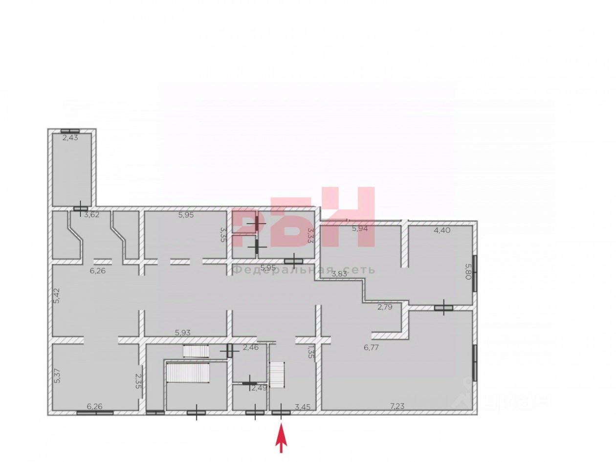
Предлагается в аренду офис 205,8 кв.м . в деловом центре ТюмениБЕЗ КОМИССИИ ДЛЯ АРЕНДАТОРА!!!- коммуналка и уборка включены в стоимость аренды,- 6 раздельных кабинетов с мебелью, просторный холл для ваших презентаций, 2 с/у,- 1-этаж, круглосуточный доступ,-место для вывески на фасаде,-30 кВт.В шаговой доступности Набережная, точки питания, остановки.Отлично подойдет для IT-компании, офиса продаж, консультаций и т.д.Подробную информацию уточняйте у наших специалистов_________________________________Регион Бизнес НедвижимостьКоммерческая недвижимостьБез комиссии для арендаторовАрт. 88433814
205 м2
- Показать контакты
- Добавить в избранное
205 м2
267 540 /мес.
1 300 /м2
