Универсальное помещение
Профсоюзная, 6 корп. 1 Показать на карте
Профсоюзная, 6 корп. 1 Показать на карте
Центральный район, Центр (Дом печати)
Тюмень
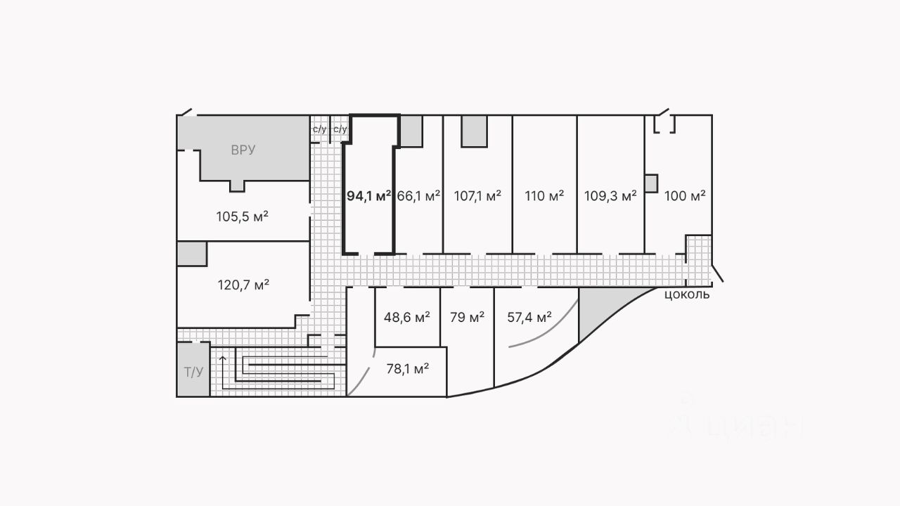
Без комиссии для арендатора!Сдается в аренду эксклюзивное помещение свободного назначения в новом современном ЖК бизнес-класса.- несколько уровней, вход с уровня земли,- отдельная коммерческая вытяжка,- выделенная электрическая мощность - 21,7 кВт, с возможностью увеличения до 40 кВт,- высота потолков - более 6 м,- выделенное место для рекламной вывески,- парковка для авто перед помещением.Можно арендовать часть помещения.Звоните и договариваетесь на просмотр.ОБРАТИТЕ ВНИМАНИЕ! АРЕНДА КОММЕРЧЕСКОЙ НЕДВИЖИМОСТИ ЧЕРЕЗ КОМПАНИЮ ''ЭТАЖИ'' БЕЗ КОМИССИИ ДЛЯ АРЕНДАТОРА!Подходит для: Аптека, Кофейня, Кафе, бар, ресторан, Кальянная, Косметология, Магазин продовольственный, Магазин непродовольственный, Офис, Пекарня, Пивбар, разливные напитки, Салон красоты / Парикмахер., Кружки / секции / досуг, Спортзал / фитнес / танцы, Цветочный магазин, Частная школа, Юридическое лицо с НДС, OpenSpace, К&Б / Св. и Тем. / Стройдвор, Ozon / CDEK / Wildberries (Озон/Сдэк/ВБ), Панорамные окна, Парковка на 10+ местКод пользователя: 187156Номер в базе: 10461273
198 м2
- Показать контакты
- Добавить в избранное
198 м2
198 000 /мес.
1 000 /м2
